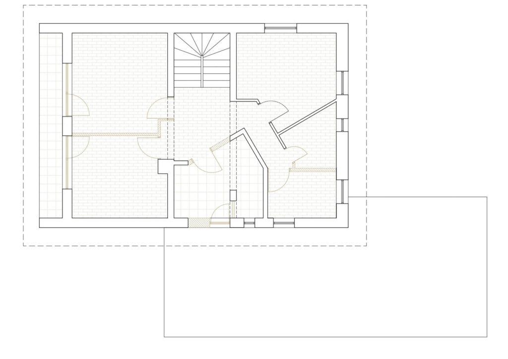
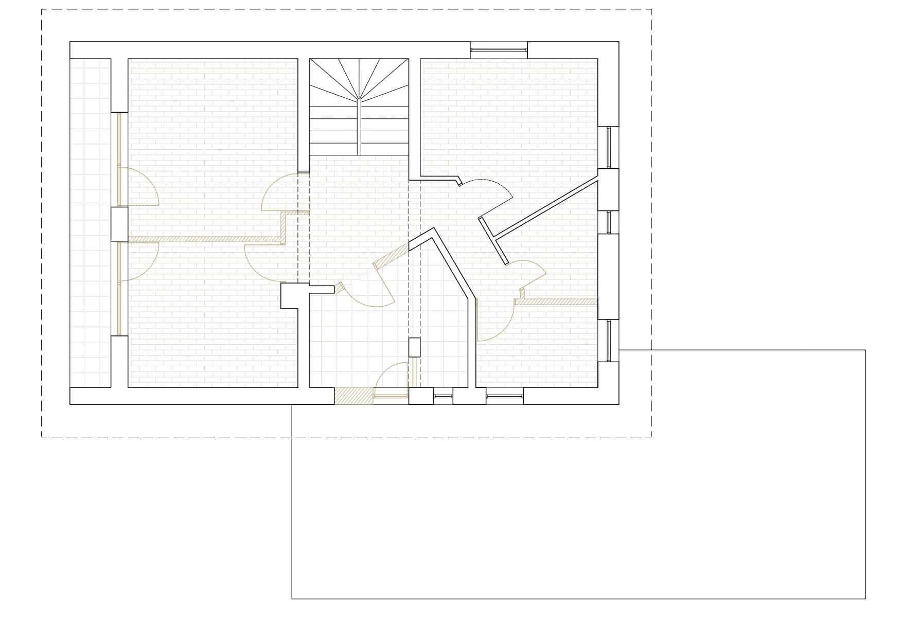
Ko je arhitektka Nika Curk prevzela prenovo stanovanja v nadstropju murgelske hiše, je pravzaprav prenavljala dom svoje mlade družine. To pa je projekt, ki zahteva dvojno občutljivost: strokovno jasnost in osebno poznavanje tega, kako želiš živeti vsak dan. Obstoječe nadstropje je bilo razdrobljeno na pet manjših prostorov in velik, neizkoriščen hodnik. Kljub lepim pogledom na zeleno okolico je bilo stanovanje temno, zaprto in prostorsko neučinkovito.
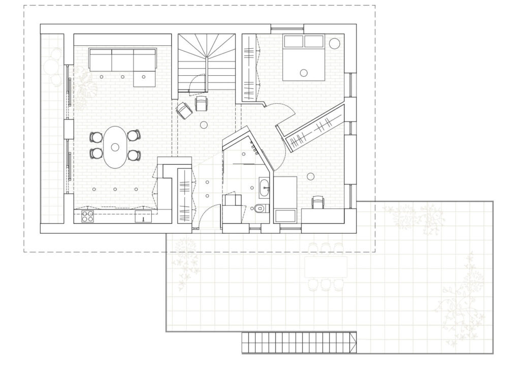
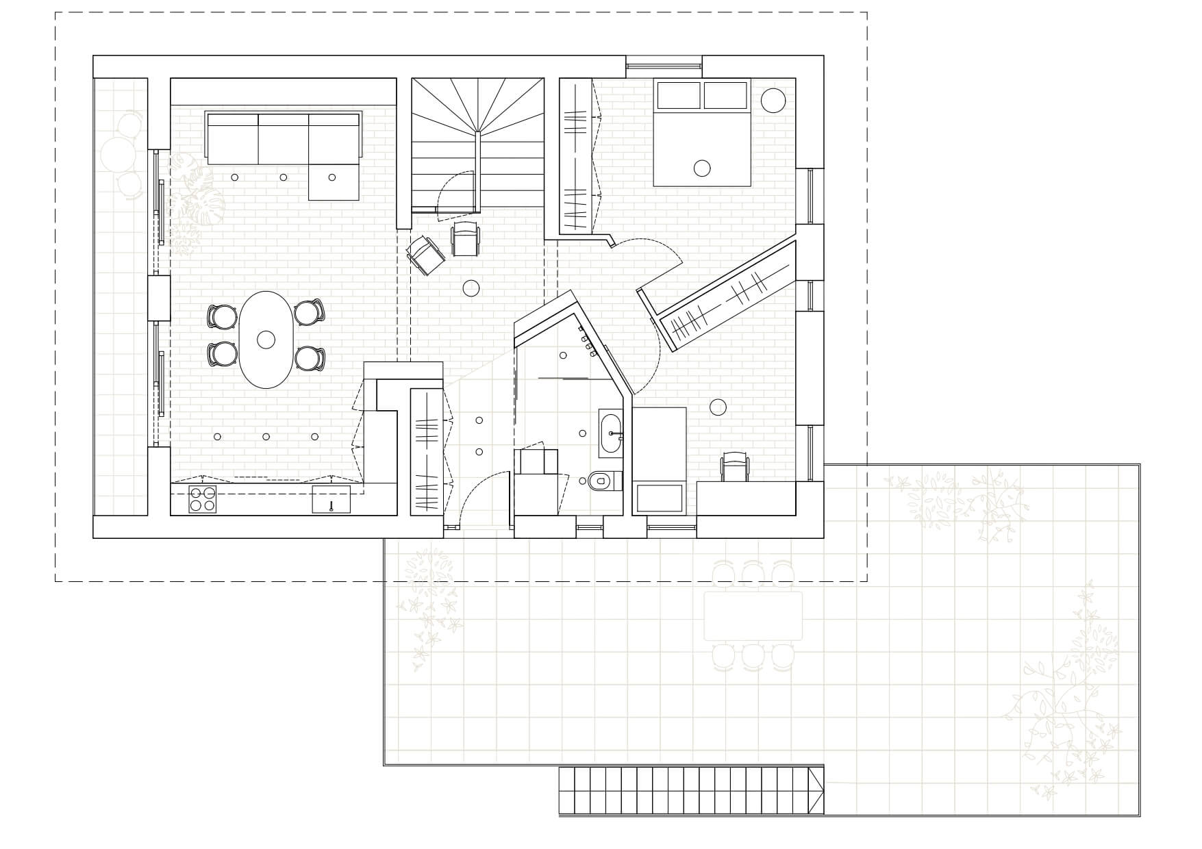
Osnovni cilj je bil zato jasen – ustvariti svetel, zračen in sodoben dom, ki se brez ovir zliva z zunanjim vrtom. Največja sprememba je bila rušenje nenosilnih sten na južni strani, kjer sta bili pred prenovo dve ločeni sobi. Združitev je prinesla velik bivalni prostor, ki danes povezuje kuhinjo, jedilnico in dnevni del ter se z dvema velikima okenskima odprtinama odpira na balkon in drevje okoli hiše. Z odstranitvijo parapetov se dnevna soba dobesedno podaljša navzven, svetloba pa v notranjost vstopa brez omejitev.
Hodnik, prej temen in brez prave funkcije, je postal del dnevnega prostora. Vanj je arhitektka umestila knjižnico, ki deluje kot nežna pregrada in hkrati ustvarja atmosfero domačnosti. Knjige tako postanejo del vsakdana in prostorskega ritma, ne le shranjene v ločenem koridorju.
Velika obstoječa kopalnica na vzhodu je bila zasnovana preveč razkošno glede na realne potrebe tlorisa. Z uvedbo steklenih sten je Nika prostor razdelila na manjšo kopalnico in predprostor, hkrati pa poskrbela, da naravna svetloba seže daleč proti notranjosti stanovanja. Minimalistična oprema, beli volumni in črne armature ustvarijo miren, eleganten ambient, ki nadaljuje glavni koncept interjerja.
Precejšen poseg je bil tudi nov vhod v stanovanje. Odprt je bil na prej neizkoriščeno streho garaže, ki je postala prostorna terasa – zunanji podaljšek bivalnega prostora. Nova ograja je nežna, skoraj neopazna, njena temno rjava barva pa skrbno navezana na barvno shemo murgelskih hiš.
Koncept notranje opreme temelji na popolnoma belem, anonimnem ovoju. Vgradne omare, kuhinja, police in shranjevalni elementi so zasnovani od tal do stropa, od stene do stene. Takšna enotna belina služi kot mirna kulisa za parket, ohranjen in skrbno prenovljen, ter za zbirko umetniških del, ki ju Nika in njen partner ustvarjata že dolga leta. Prostor sčasoma postaja majhna galerija, njegova identiteta pa se gradi skozi osebne predmete – od Thonetovih stolov in jedilne mize do oblikovalskih svetil, ki jih arhitektka postopoma dodaja.
Na severu sta spalnica in otroška soba ostali bolj umirjeno obravnavani. Spalnica je bila le osvežena, v otroški sobi pa je bila odstranjena ena stena, da je prostor postal bolj uporaben in zračen.
Rezultat prenove je svetlo, umirjeno in premišljeno stanovanje, kjer prostori dihajo, se povezujejo med seboj in z zelenjem zunaj. Majhne sobe so se spremenile v velik, odprt bivalni prostor, temen hodnik je postal knjižnica, stene pa galerija življenja, ki se skozi čas širi.
- Avtorica interjerja: Nika Curk Nagode
- Leto izvedbe: 2021
- Površina: 84 m²
Fotografija: Nika Curk Nagode




































































