Iz mansarde v Zgornjih Gorjah lahko skozi okna opazujemo razgibane strehe sosednjih objektov. Le majhen zasuk glave pa tudi nad nami samimi razkrije mogočno ostrešje, ki se bohoti nad umirjenim interierjem.
Kako urediti stanovanje v starem podstrešju, ki ima kljub veliki bruto površini skoraj polovico manj pohodne površine, pa še ta je prepredena z dimniki, podpornimi zidovi in nizko ležečimi legami? Arhitekta Meta Kutin (mKutin arhitektura) in Tomaž Ebenšpanger (Skupajarhitekti) sta se odločila s skrbno umestitvijo pohištva tloris čimbolj poenostaviti in do zadnjega kotička izkoristiti uporabno površino.
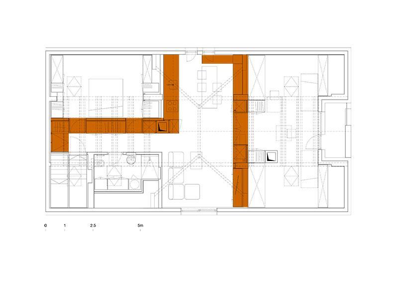
Nepravilen tloris sta povezala s pohištveno ‘kačo’, ki se vleče že od vhoda dalje. Ta element skozi prerez spreminja svojo višino in namembnost, saj so vanj poleg shranjevalnih površin integrirani še vhodi v spalnice, kaminska peč na pelete, klop in kuhinjski niz. Ta ‘kača’ nas od vhoda popelje mimo spalnice in kopalnice v osrednji dnevni prostor, od tod pa še v otroško sobo oziroma igralnico. Elegantna siva barva in črni ročaji so stalnica v obdelavi, vmes pa jo prekinejo še črn kuhinjski pult ter velika odprtina kamina, prav tako v črni barvi.
Ostalo pohištvo je minimalno – udobna zofa, preprosta jedilna miza, še celo svetila se trudijo ostati anonimna. Zato pa toliko bolj izstopi mogočna strešna konstrukcija, ki skupaj z geometrijo stropa v nas prebuja vprašanja o statiki, o obrti, o staranju.
Arhitektura: Meta Kutin, udia (mkutin.si) in Tomaž Ebenšpanger, udia (skupajarhitekti.com)
Leto projekta: 2016
Fotografije: Tomaž Ebenšpanger



























































