Arhitekt Martin Čenek se je znašel v zanimivem dvojni vlogi – kot arhitekt in kot naročnik. Njegov projekt popolne prenove dvosobnega stanovanja v večstanovanjski stavbi v češki prestolnici je zato neke vrste iskanje ravnotežja med profesionalno natančnostjo in intimnim občutkom za prostor.
Biti arhitekt in hkrati naročnik je izziv, ki presega običajno prakso. Projekt oblikovanja lastnega doma je bil zato tudi za arhitekta Martina Čenka odraz zanimivega iskanja ravnotežja. Med popolnim nadzorom in dvomom. Med spoštovanjem do zgodovine in željo po izrazu lastne identitete. Prav zato se je rekonstrukcija stanovanja v večstanovanjski hiši iz poznih tridesetih let prejšnjega stoletja raztegnila skoraj čez desetletje. V tem času pa se je arhitekt temeljito poglobil v bistvo prostora in lastno razumevanje arhitekture.
Hiša, v kateri se nahaja stanovanje, je delo arhitekta Ladislava Šimka, zgradil pa jo je njegov brat Jaroslav. Gre za tipično modernistično stavbo tistega časa – keramična fasada, racionalen tloris in majhna, a funkcionalno zasnovana stanovanja, ki so izražala duh povojnega funkcionalizma. Pomemben del prenove je bil torej premislek o posegu, saj arhitekt s prenovo ni želel izničiti duše in zgodovine tega stanovanja. Odgovor je našel v ravnovesju – v dialogu med avtentičnostjo obstoječega in precizno vpeljano sodobnostjo, ki spoštuje preteklost, a jo hkrati dopolnjuje.
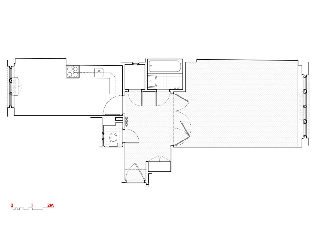
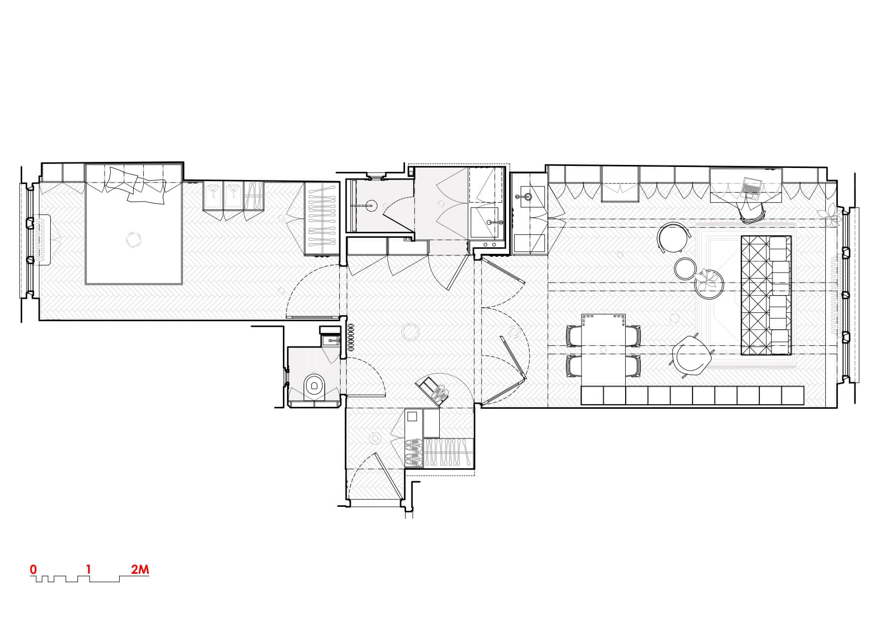
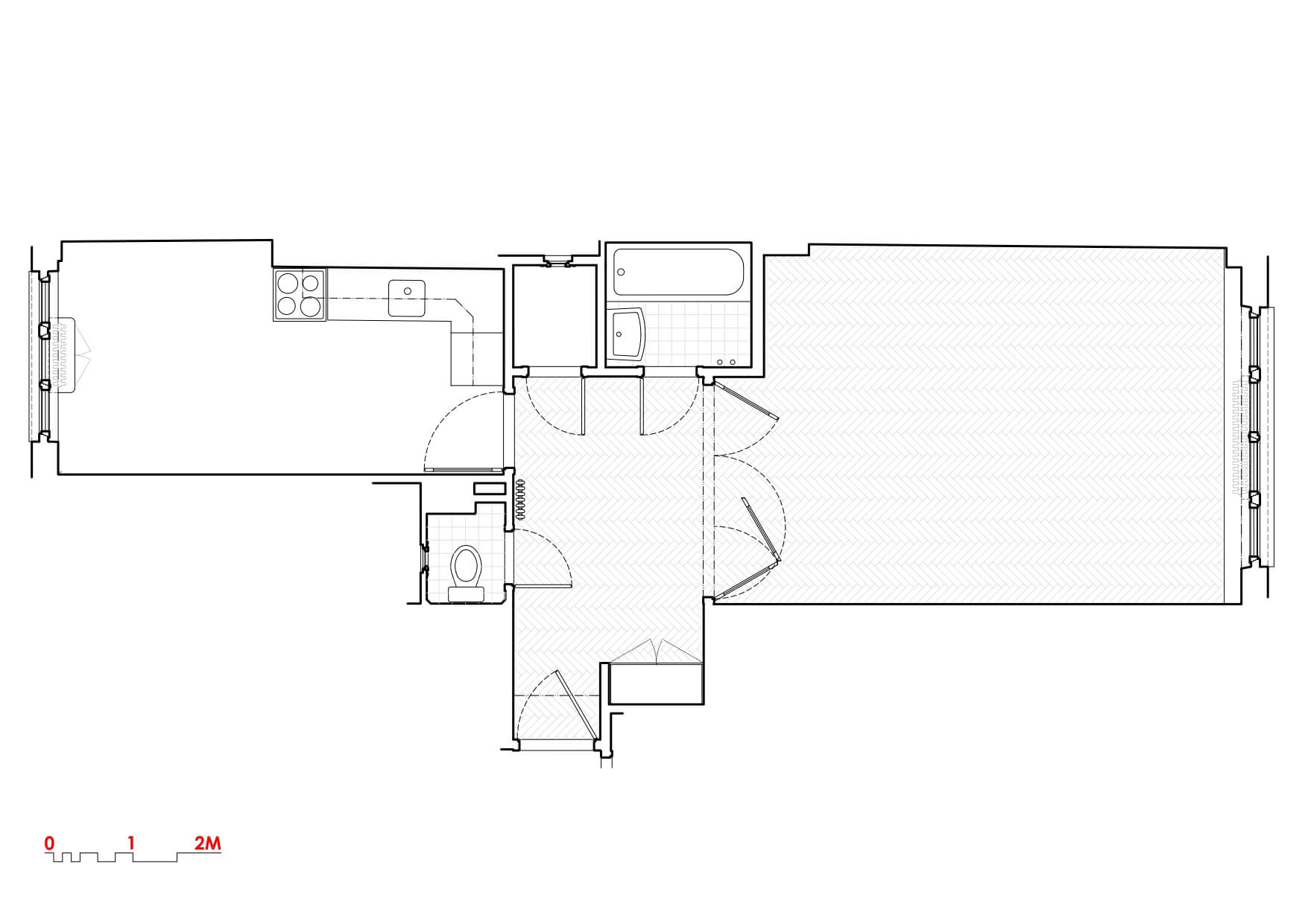
V sklopu celovite prenove so zamenjali vse napeljave, posegli pa so tudi v konstrukcijo tal. Armiranobetonski strop v dnevni sobi, ki je bil nekoč prekrit z ometom, je arhitekt očistil in ga ohranil v surovi obliki, s čimer je ustvaril močen likovni poudarek. Ta poteza ni le estetska, ampak konceptualna – gre za razkritje konstrukcije kot same osnove prebivanja. Originalna okna in vrata so bila restavrirana, dotrajan hrastov parket pa so nadomestil z natančno repliko prvotnega. S tem so ohranili kontinuiteto materialov, medtem ko novi elementi subtilno razkrivajo sodobni arhitekturni jezik.
Največji poseg predstavlja na novo vstavljen pohištveni volumen, ki je nadomestil nekdanjo shrambo in kopalnico. Vanj so umestili shranjevalne prostore, kopalnico in del kuhinje. Volumen so odeli v beljen hrastov furnir, saj z njegovo podobo niso želeli grobo posegati v videz prostora. Ta pohištveni blok zato deluje kot »sodobna kapsula« znotraj zgodovinskega okvira, vsak detajl pa odraža natančnost in spoštovanje do izvirne arhitekture.
Interjer ni samo estetska kompozicija, ampak osebni arhiv družinske zgodovine. Med najdragocenejšimi kosi so štirje Thonetovi stoli iz hiše arhitektovega pradeda, Thonetov naslanjač, svetilka Anýž iz 30. let in cevni stol Ez12, ki ga je leta 1930 oblikoval Karel Ort za tovarno Gottwald. Te predmete iz obdobja funkcionalizma dopolnjujejo sodobni oblikovalski kosi, s podpisom največjih sodobnih oblikovalskih imen. Za piko na i v prostoru pa poskrbi rožnat stolček v obliki pujska, ki so ga arhitektu ob vselitvi poklonili prijatelji in ki služi kot opomnik, da tudi arhitekti ne smejo sebe in svojega dela vedno jemati preveč resno.
Projekt razkriva intimno razmerje med arhitektom in prostorom, ki ga ustvarja. Arhitekt se zato v spremnem zapisu sprašuje, ali je močnejši duh kraja ali identiteta uporabnika, njegov odgovor pa je subtilen – človek se sčasoma zlije z dušo prostora, ta pa se nežno prilagodi njegovemu načinu prebivanja.
- Studio: martin cenek architecture
- Avtor: Martin Cenek
- Lokacija: Praga, Češka
- Leto trajanja projekta: 2013–2020
- Leto zaključka projekta: 2023
- Uporabna površina: 49 m²
Fotografije: Alex Shoots Buildings
















































































