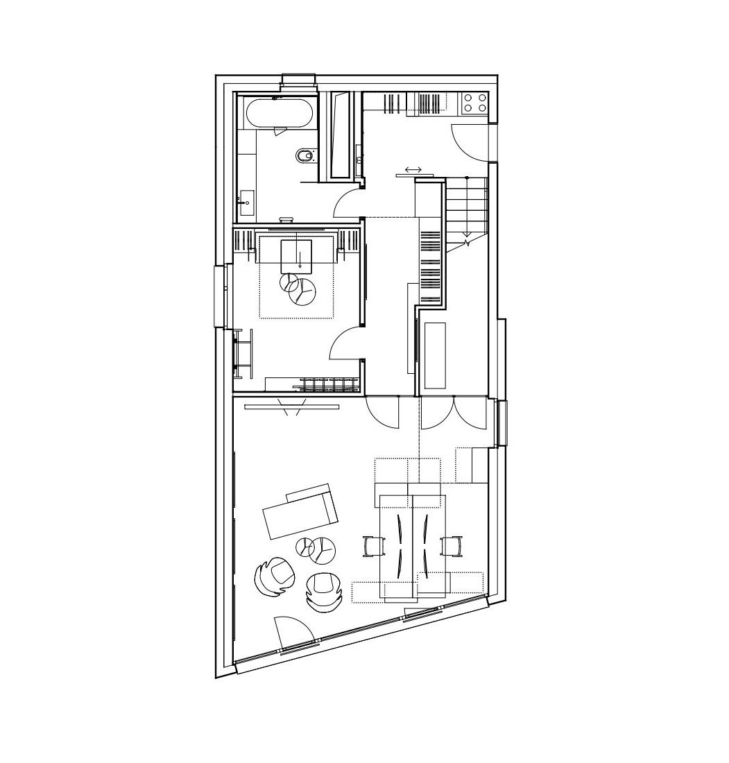
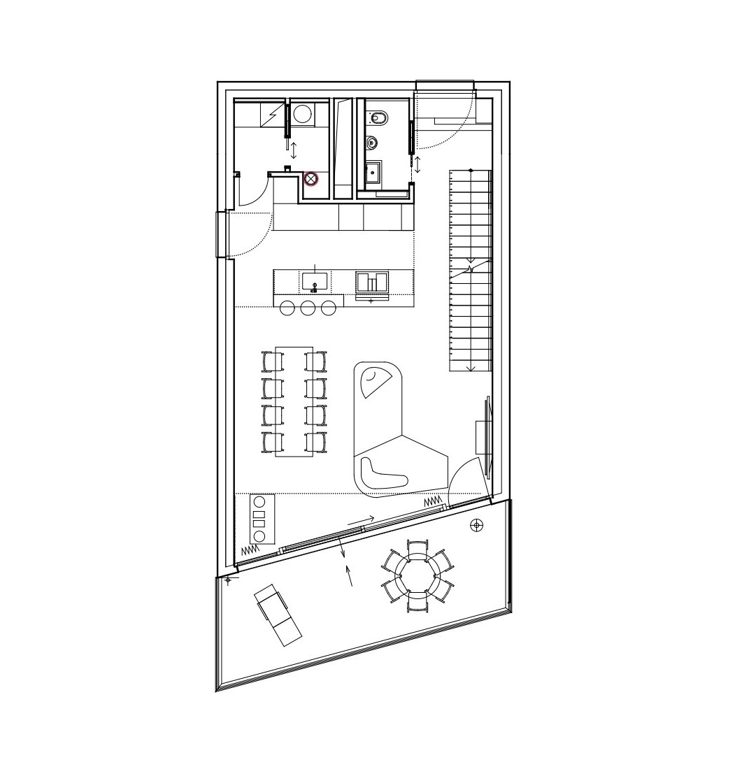
Da je tudi z igro različnih odtenkov med belino in črnino mogoče ustvariti bogat in zanimiv prostor, dokazuje projekt Radke Valove in Petra Vlacha iz Studia OOOOX. Gre za stanovanje, ki se razteza na razkošnih 170 m2, njegova podoba pa je rezultat velikega zaupanja med naročnikom, arhitektoma in investitorjem novogradnje.
Osrednji motiv stanovanja je viden beton, ki se pojavlja v vseh treh etažah. Že med gradnjo so arhitekti z naročniki sprejeli odločitev, da beton ohranijo v surovi obliki, s tem pa je robustna, a hkrati elegantna struktura postala hrbtenica celotnega prostora.
Kljub številnim razkritim konstrukcijskim elementom je zasnova izjemno funkcionalna. Prezračevalni vodi so diskretno skriti v spuščene strope spodnjih etaž, njihovi izhodi pa se neopazno nadaljujejo skozi pohištvene baze. V vertikali se skozi stanovanje vije še jašek za perilo, ki povezuje vse tri etaže – rešitev, ki je bila izvedljiva po zaslugi pravočasnega vključevanja arhitektov v fazi načrtovanja.
V dnevnem prostoru kraljuje viseče stopnišče iz jeklenih palic, pri čemer je vsaka stopnica izdelana iz tankih jeklenih lamel, obloženih z lesom, kar ustvarja občutek lahkotnosti in lebdenja. Montaža te konstrukcije je zahtevala usklajeno delo treh strok hkrati, rezultat pa je estetsko in tehnično dovršen element, ki postane osrednji fokus prostora.
Glavna kopalnica je kombinacija temnih, velikih keramičnih ploščic in medeninastih armatur, ki v prostor vnašajo eleganco in prestiž. Investitor je arhitektom že v samem začetku omogočil vgradnjo skritih delov armatur, s čimer so se izognili poznejšim posegom. Ena izmed kopalnic se ponaša celo s stropno armaturo, redko videno v stanovanjih tega tipa.
Vsaka etaža skriva svojo t. i. črno škatlo, pri čemer se v tlaku, stenah in v stropu izrazi globok, mat črn ton. V dnevnem prostoru je ta vloga dodeljena kuhinji, obloženi s kamnom in z lesom, ki ustvarjata dramatičen kontrast betonu. V spalnici črna škatla skriva posteljo z integriranimi shranjevalnimi prostori in s knjižno polico ob vzglavju. Tretja črna škatla se nahaja v delovni sobi, pri čemer črna barva ustvari mirno, zbrano atmosfero.
Vse pohištvo, z izjemo sedežne garniture, je narejeno po meri. Uporabljen je temen les, ki je bil v ta namen dimljen z amonijakom, s čimer so izvajalci zagotovili globoko obarvanost in preprečili, da bi se morebitne praske svetleje poznale. Kovinski poudarki iz jekla se pojavljajo v obliki vinilnih stojal, nočnih mizic in okvirjev. V spalnici posebno pozornost pritegne omara iz jekla in stekla, pri čemer so razstavljeni lastnikovi najljubši modni dodatki – klobuki, torbe in nakit.
- Studio: OOOOX
- Avtorja: Radka Valova in Petr Vlach
- Lokacija: Praga, Češka
- Leto projekta: 2021
- Leto zaključka projekta: 2023
- Uporabna površina: 170 m²
Fotografije: Martin Zeman






















































































