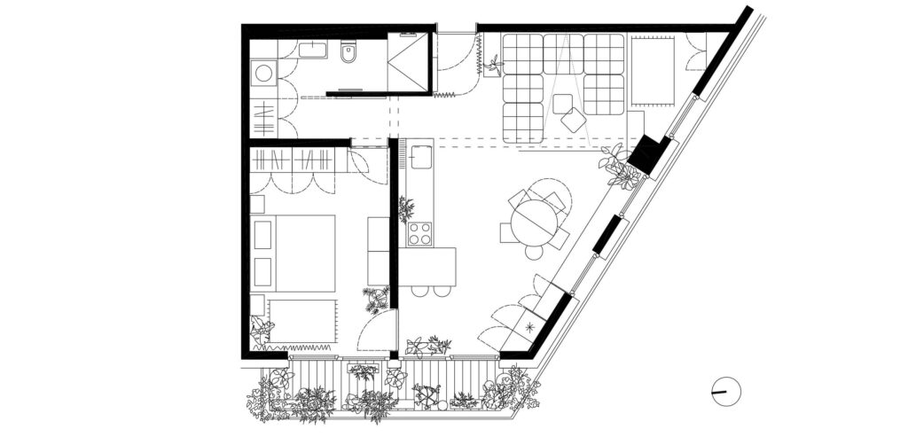
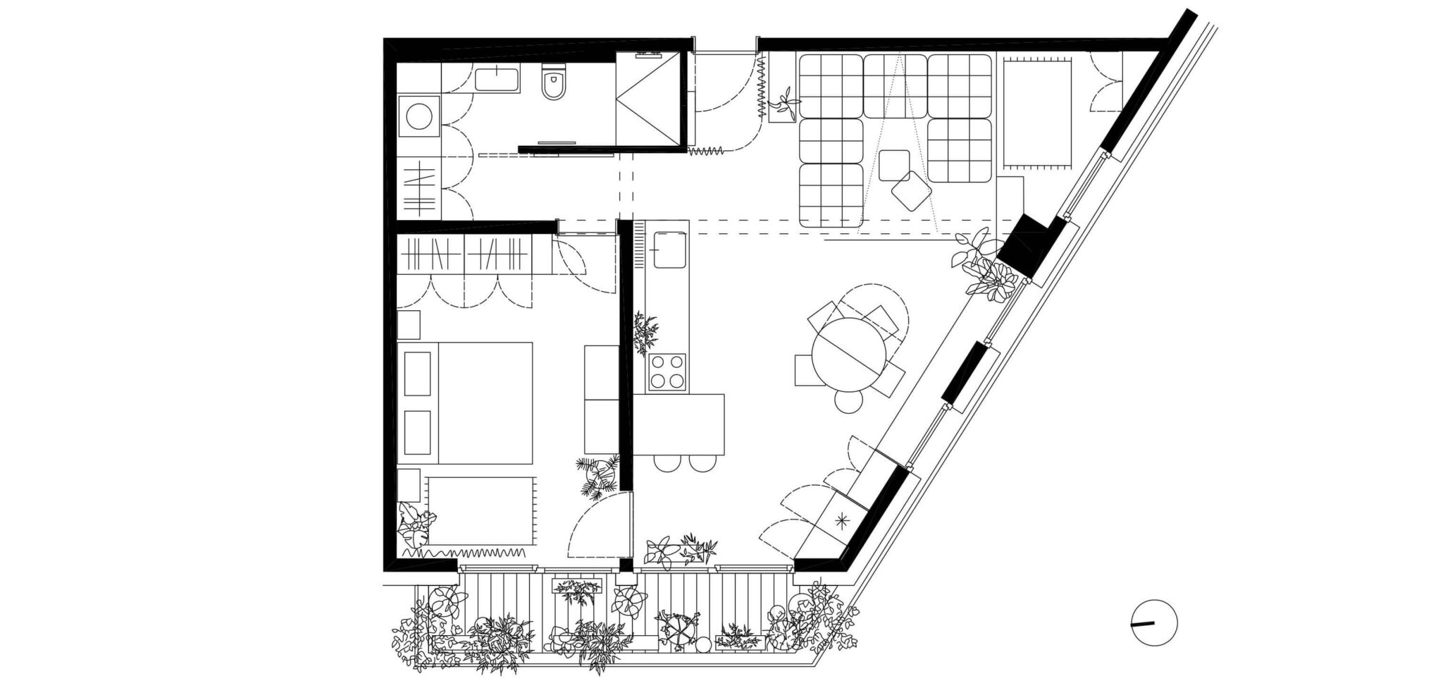
V ljubljanski Šiški je v novozgrajenem bloku arhitektka Danaja Jovandič oblikovala 68 m² veliko stanovanje, ki ne skriva svojega značaja. Interjer ni bil načrtovan kot instant projekt, temveč je nastajal počasi – skladno z življenjem, potrebami in zmožnostmi stanovalcev. Ta proces mu je vdihnil toplino in avtentičnost, ki ju v hitrem času načrtovanih interjerjev redko srečamo.
Odprt tloris, prežet s svetlobo velikih oken, omogoča pretočnost med kuhinjo, jedilnico in dnevnim prostorom. Oprema po meri zapolnjuje niše in kote, ki bi sicer ostali neizkoriščeni. Frontam omaric posebno noto daje brušena in barvana OSB-plošča – skromen material, ki je tu postal presenetljivo estetski element.
Pohištvo z značajem in preteklostjo
Stanovanje je preplet novega in starega. Rumeni omarici iz centra ponovne uporabe sta bili povod za barvitost celotnega interjerja. Jedilna miza je zaživela novo življenje po brušenju stare črne barve, babičini stoli so bili obnovljeni, modularna sedežna garnitura z Bolhe pa se je kot ulita vključila v prostor. Celo betonska stena ni rezultat industrijske surovosti, temveč ročnega dela – olupljena je bila centimeter za centimetrom. Vsak predmet tukaj ima svojo zgodbo, ki stanovanju daje globino in plastovitost.
Barve, teksture in igrivost
Prvi vtis ob vstopu v stanovanje je radosten. Pogled se ustavi na kontrastih: smaragdno zeleni sedežni garnituri, živahnih dodatkih, toplih lesenih tleh in presenetljivih detajlih, kot so rdeče mizice, keramične vaze ali barvni tekstil. Prostor ni muzejsko urejen, temveč vabi k uporabi in raziskovanju. Detajli, kot so skriti shranjevalni prostori ob oknih ali igrivi kotički z rastlinami, kažejo, da tu bivanju vlada lahkotnost.
Intimni kotički – spalnica, kopalnica in balkon
Spalnica je umirjena, s svetlo osnovo in mehko barvno paleto tekstila. Kopalnica pa združuje preprostost belih omaric z detajli iz lesa in elegantno zaobljenim ogledalom. Na balkonu se življenje nadaljuje – majhen zeleni vrt zelišč in rastlin prinaša občutek domačnosti in stik z naravo sredi urbanega okolja.
Interjer kot odprta zgodba
Za arhitektko Danajo Jovandič interjer nikoli ne sme biti popolnoma zaključen. Vedno mora ostati prostor za spremembo, dopolnitev ali novo odkritje. To stanovanje je utelešenje te misli – ni zamrznjen trenutek, temveč živ proces.
- Arhitektura: Danaja Jovandič, Jagoda studio
- Lokacija: Ljubljana, Slovenija
- Leto izvedbe: 2024
Fotografije: Miha Godec, Danaja Jovandič










































































