Miniaturno stanovanje na Primorskem je prava paša za oči za vsakogar, ki obožuje barve. Meri 22 kvadratnih metrov, in če se sprašujete, kako na tako malo prostora sploh organizirati udobno prebivanje, je odgovor: iznajdljivost. Edinstven dom je nastal pod taktirko arhitektke Ane Gruden, ki je vsako podrobnost premislila za maksimalno funkcionalnost. Predstavljamo torej zgodbo o kreativnosti, s katero so prostorske omejitve pretvorili v unikaten in prijeten dom.
Stanovanje se nahaja v Kopru, zaznamujejo pa ga dinamični vzorci, raznoliki materiali in teksture. Poseben značaj mu dajejo starinski leseni tramovi, zaradi pisane tapete pa je dobilo ime »Jungle«, Džungla.
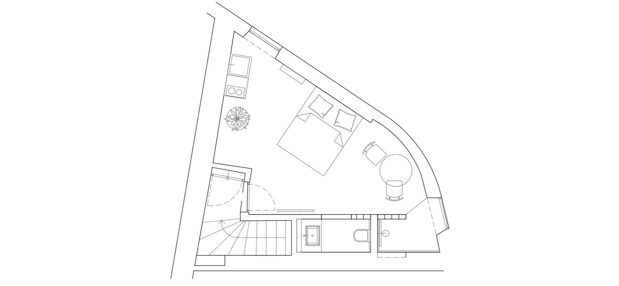
»Posebnosti stanovanja so, da sem na minimalnem prostoru poskušala organizirati vse funkcije, kot so kuhinja, skladiščni prostor pod stopnicami, postelja, miza in kopalnica z ločenim tušem. Džungla pa je poimenovan po tapeti, ki je kot iz džungle. Želela sem, da tapeta ne bi bila preveč težka, preveč žalostna, in ko sem videla to kombinacijo rožnate, zelene ter teh živih oblik in ptic, se mi je zazdelo, da bo lepo popestrila prostor. Poleg tega pa temna barva tudi dobro skrije televizijo,« pripoveduje arhitektka.
Majhen prostor je bil izziv, saj je morala premisliti vsak centimeter in ga optimizirati. Edini možni shranjevalni prostor je našla pod stopnicami, v skladu s prostorskimi omejitvami je izbirala tudi pohištvo, okenskim odprtinam pa je prilagodila kopalnico, ki je iz dveh delov. »Prostor je namenjen paru. Zjutraj, ko par hiti, ima po navadi isti tajming. Medtem ko se eden tušira, si drugi umije zobe. Predvsem pa je kopalnica dvodelna zaradi svetlobe. Organizacija tuša ob oknu je omogočala dostop svetlobe v prostor, wc in umivalnik pa naravne svetlobe nimata.«
Kuhinja ima okno, zato je svetla in prijetna, ravno prav velika za pripravo zajtrka in kave. Postelji pa je po drugi strani namenjenega precej prostora, saj je najrazkošnejši kos pohištva v stanovanju. »Dvignjena postelja deluje tako, da prostor učinkuje večji, ker pod njo vidimo celo ravnino tal. Ne zabunka z nekim kubusom, ampak je samo en objekt v prostoru. Jaz osebno imam rada dvignjene postelje, zato da zrak boljše kroži. Tudi malo bolj romantična je taka postelja.«
Za romantiko poskrbijo še leseni tramovi, ki so prvotni in jih je obnovil lastnik. Tudi lesen pod je masiven, sicer pripeljan iz drugega objekta, posebno energijo pa pričara kamnita stena, zvečer prijetno osvetljena in ambientalna. Zahtevala je kar nekaj dela: »Gre za originalne kamne. Treba je odstraniti star omet, potem po navadi z neko medeninasto ščetko poščetkati star cement, očistiti fuge. Pri tem je tudi pomembno, da ne uporabljamo kakšnih grobih orodij, da se kamen ne poškoduje,« opisuje arhitektka, ki v prostorih rada kombinira stare in nove elemente, saj bogatijo prostor. »Jaz to včasih primerjam z druženjem z ljudmi. Ena širina je to. Če se ti družiš z otroki in starimi ljudmi, imaš več različnih doživetij in izkušenj, kot če bi se družil samo s svojo generacijo. Tako se mi zdi tudi pri teh stilih: kadar imamo več možnih izrazov iz različnih obdobij in časov, je to samo zanimivo.«
Arhitektura: Ana Gruden
Fotografije: Vid Rotar




































































