Interjer stanovanja v Škofji Loki, poimenovan Gnezdo, je bil zasnovan za mlad par in prihajajočega otroka. Gre za dom, ki že v izhodišču ni nastajal kot reprezentativen ali izrazito oblikovalski eksperiment, temveč kot premišljeno, umirjeno in udobno bivalno okolje, prilagojeno vsakodnevnim navadam, ritmom in spremembam, ki jih prinaša novo življenjsko obdobje.
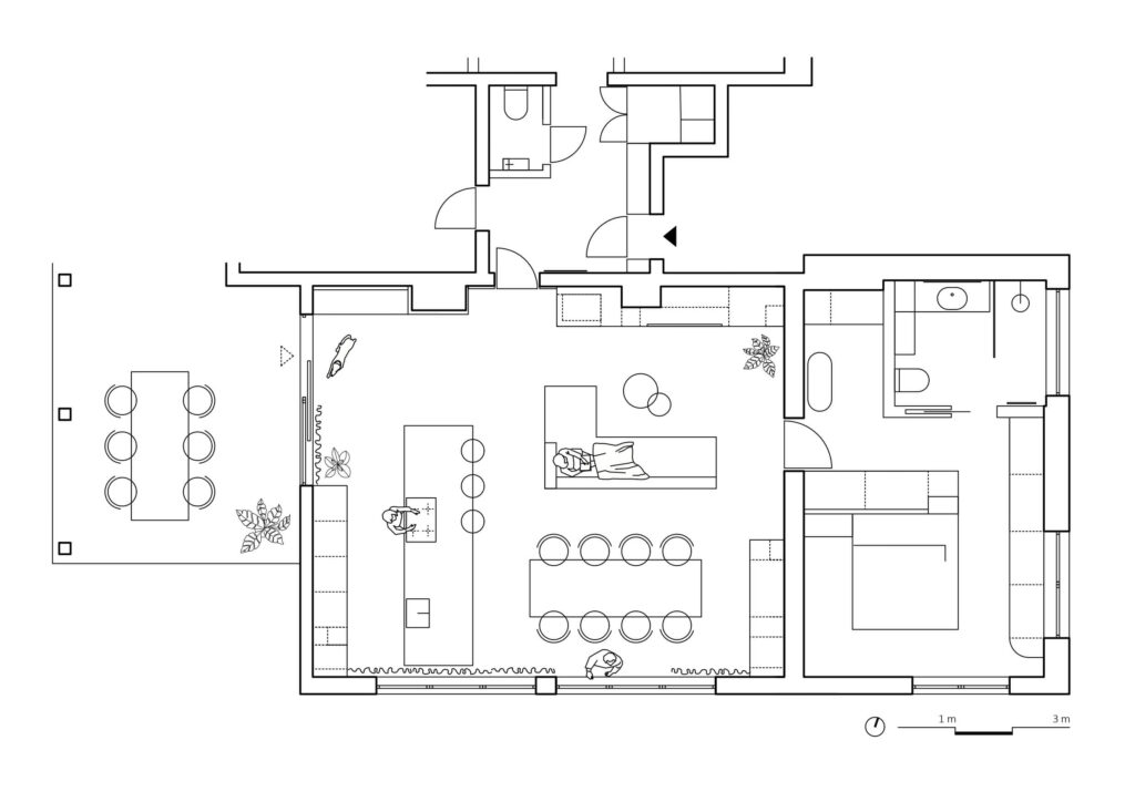
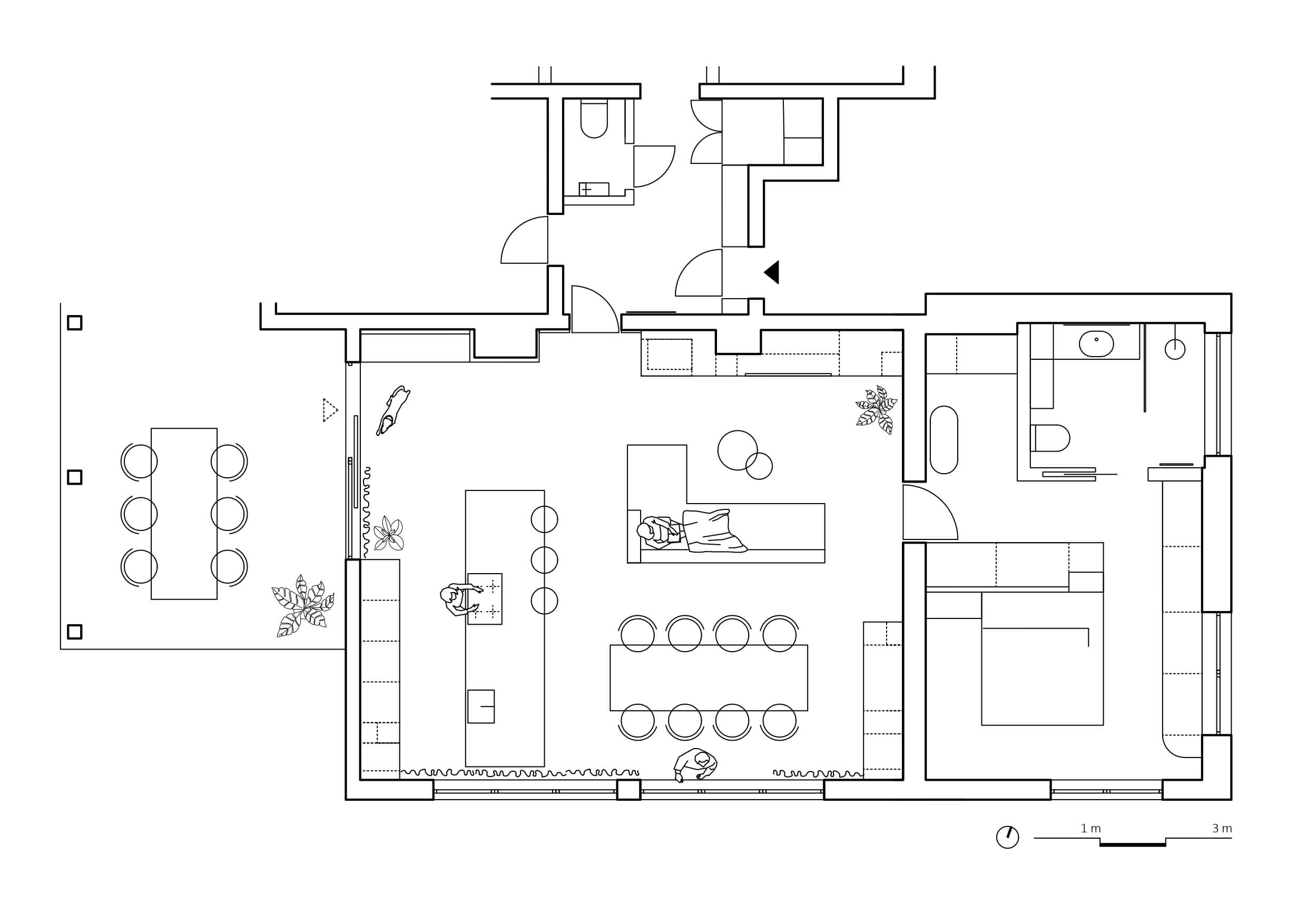
Stanovanje je ponujalo velikodušen volumen in odprt tloris, kar je projektantom iz studia Alter arhitektura & design omogočilo jasen fokus na prostorske odnose. Dnevni prostor je organiziran okoli treh ključnih elementov – kuhinjskega otoka, jedilne mize in sedežne garniture. Ti niso razumljeni kot ločeni kosi opreme, temveč kot enakovredni nosilci bivanja, ki skupaj oblikujejo osrednji življenjski oder doma.
Ravnotežje med odprtostjo in domačnostjo
Kljub odprti zasnovi prostor ne deluje razpršeno. Z natančnim umeščanjem pohištva, materialnimi poudarki in premišljeno osvetlitvijo je ustvarjen občutek jasne strukture in hkrati sproščenosti. Kuhinjski otok s svojo dolžino in masivnostjo predstavlja funkcionalno in vizualno sidro prostora – namenjen je kuhanju, druženju in vsakodnevnim stikom. Ob njem se v naravnem zaporedju nizata jedilna miza in zofa, ki skupaj vzpostavljata tekoč, a berljiv prostorski ritem.
Poseben poudarek je namenjen udobju. Velika sedežna garnitura v temno zelenem tonu je oblikovana po meri in kljub svoji izraziti prisotnosti deluje mehko in vabljivo. Njena postavitev omogoča tako druženje kot umik, prostor pa z njo dobi občutek teže in stabilnosti.
Materiali, ki gradijo občutek topline
Osrednji material stanovanja je les, predvsem v naravnem odtenku hrasta, ki se pojavlja v talnem parketu, pohištvu po meri in posameznih arhitekturnih poudarkih. Les je uporabljen večplastno – ponekod zadržano, kot tiha podlaga, drugje bolj izrazito, na primer pri masivni jedilni mizi, ki s svojo robustnostjo in proporci jasno zaznamuje prostor.
Belina sten in vgradnega pohištva deluje kot nevtralno ozadje, ki omogoča, da materiali in izbrani kosi opreme pridejo do izraza brez občutka vizualne prenasičenosti. Kontrast ji predstavlja črna kaminska vertikala z dekorativno obdelano površino, ki v prostor vnese rahlo surovost in poudari vertikalni značaj dnevnega dela.
Kuhinjski otok je oblečen v tehnični kamen svetlega tona z nežno izraženo žilo, ki subtilno poživlja sicer umirjeno barvno paleto. Material ni izbran kot izraz prestiža, temveč zaradi svoje trajnosti, uporabnosti in vizualne umirjenosti.
Svetloba kot povezovalni element
Velike steklene površine omogočajo obilico naravne svetlobe, ki čez dan spreminja značaj prostora in mehča njegove robove. Svetloba poudarja teksture materialov, zlasti lesa in tekstila, ter ustvarja različne atmosfere – od živahnega dnevnega dogajanja do mirnejših, bolj intimnih večerov.
Umetna osvetlitev je zasnovana večplastno. Diskretna stropna svetila zagotavljajo enakomerno splošno svetlobo, medtem ko viseča svetila nad jedilno mizo dodajajo mehkejši, bolj domač poudarek. Njihova organska, pletena struktura v prostor vnese toplino in nežno razbije strožjo geometrijo odprtega tlorisa.
Prehodi med javnim in intimnim
Zasebni del stanovanja je jasno ločen, a ne zaprt. Prehodi so mehki, z lesenimi elementi, ki že v dnevnem prostoru napovedujejo bolj intimen značaj spalnice. Ta je oblikovana kot umirjeno zatočišče, kjer se materialna paleta še dodatno poenoti in prostor dobi skoraj kokonast značaj.
Ime Gnezdo se tako ne nanaša le na simboliko novega začetka, temveč zelo konkretno opisuje način bivanja, ki ga stanovanje omogoča. Gre za dom, ki ni zasnovan za razkazovanje, temveč za življenje – za vsakodnevne rituale, bližino in postopno rast družine.
- Projekt: Gnezdo
- Lokacija: Škofja Loka
- Avtorji: Alter arhitektura & design
- Leto načrtovanja: 2023
- Leto izvedbe: 2025
- Površina: 95 m²
Fotografije: Ana Skobe













































































