Prenova tipske družinske hiše v Gmajnicah pri Komendi je dokaz, da za občutno več kakovosti bivanja ni vedno potrebna večja kvadratura – temveč dober razmislek o prostoru, svetlobi in življenjskih navadah stanovalcev. Arhitekti iz ateljeja BER.NARD so obstoječo hišo s premišljenimi posegi spremenili v svetel, odprt in funkcionalen dom, popolnoma prilagojen sodobnemu družinskemu življenju.
Od temnega hodnika do odprtega bivalnega jedra
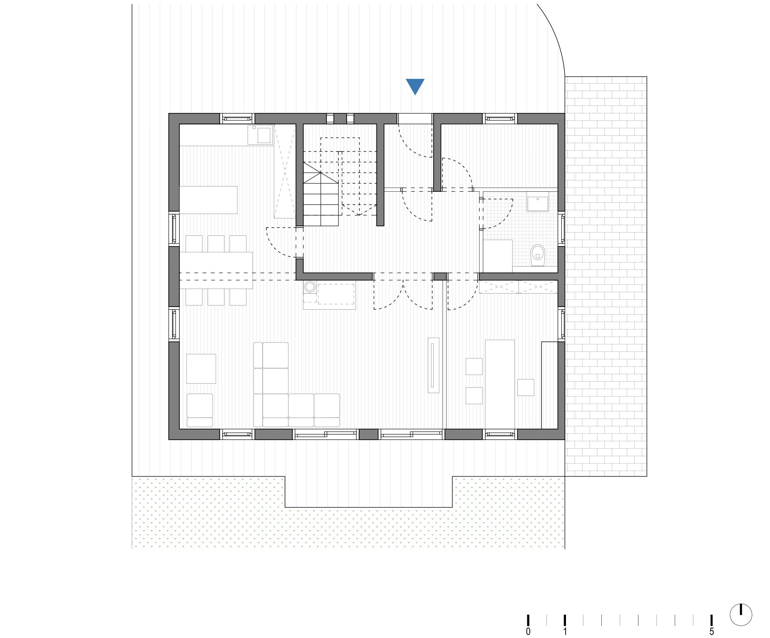
Izhodišče prenove je bilo preprosto, a ključno: hiši omogočiti, da »zadiha«. Družina se v prvotni razporeditvi prostorov ni počutila dobro – temen hodnik je ločeval prostore, bivalni del ni imel prave povezave z vrtom, prostori pa niso sledili vsakdanjim navadam. Kljub kakovostni opremi občutka doma ni bilo.
Glavnina posegov je bila zato usmerjena v pritličje, kjer so arhitekti odstranili predelne stene, ki so drobile tloris. Kuhinja, jedilnica in dnevna soba danes delujejo kot en sam, vzdolžno razpotegnjen prostor, prežet z naravno svetlobo in pogledi na vrt. Nekdanji hodnik je izgubil vlogo zgolj komunikacijskega elementa in postal enakovreden del bivalnega prostora. Z odprtim stopniščem se organsko povezuje tudi z mansardo.
Posebnost je nekdanji delovni kabinet, ki je zdaj s krožno potjo povezan z bivalnim prostorom. Po potrebi ostaja odprt kot razširitev dnevnega prostora, lahko pa se umakne v miren kotiček za delo, branje ali domače naloge.
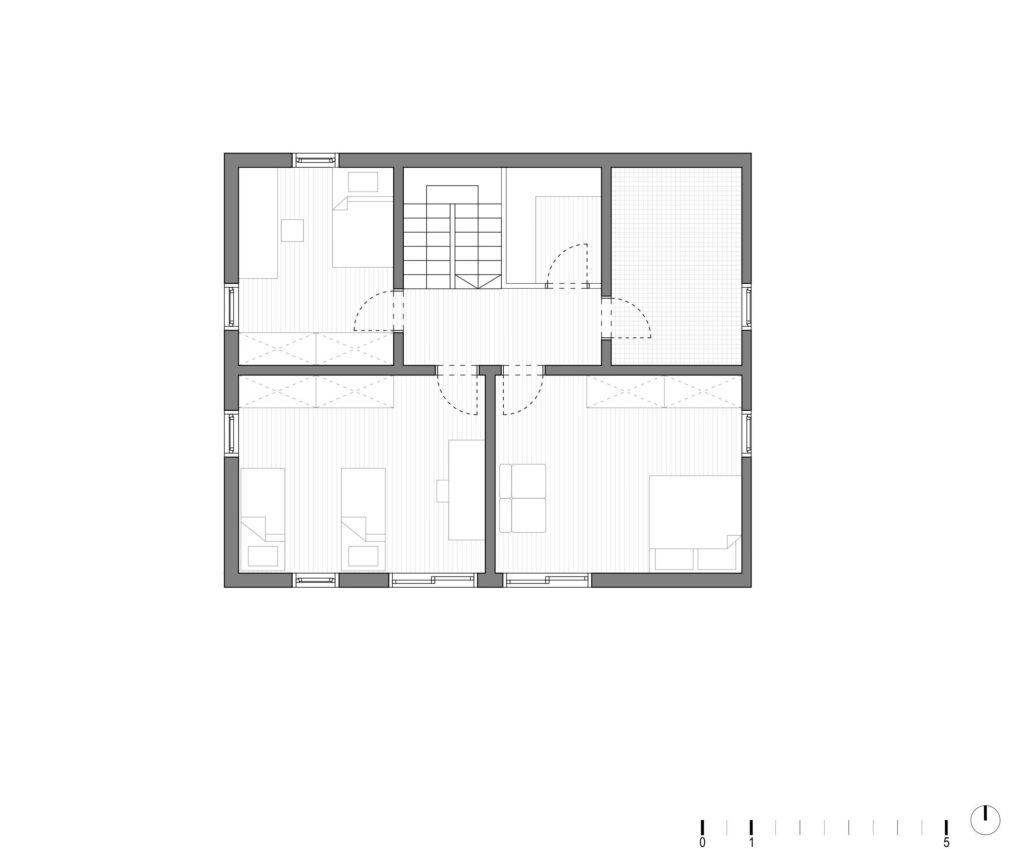
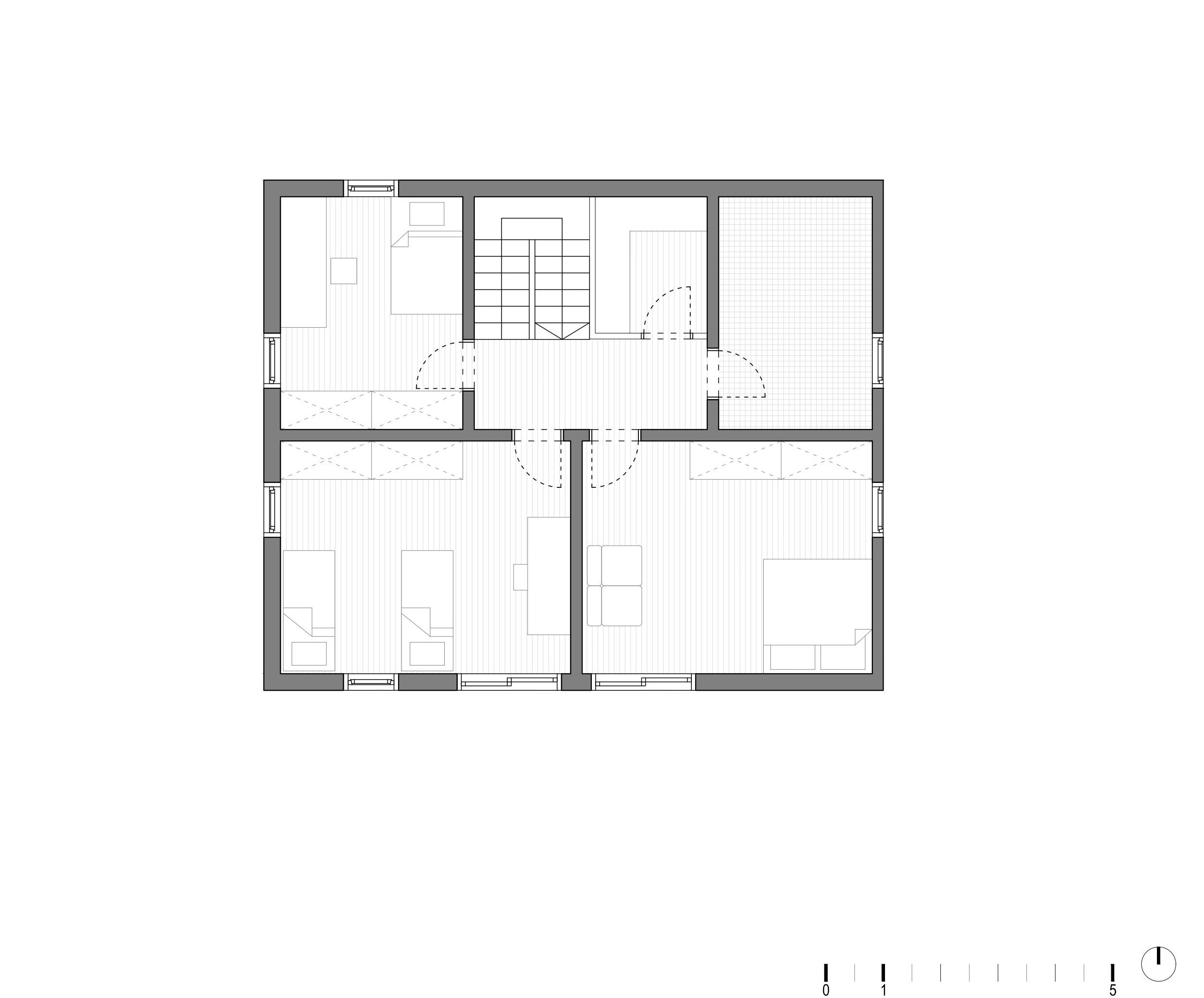
Mansarda v novi vlogi
Tudi mansarda je doživela funkcionalno preobrazbo. Nekdanja shramba se je spremenila v manjši, a prijeten delovni kotiček z naravno svetlobo, ki se prek notranjega okna odpira na svetlo stopnišče. Na novo so zasnovali dve enakovredni otroški sobi ter manjšo, a udobno, spalnico za starša. Krožna organizacija tlorisa in vizualna povezanost nadstropij ustvarjata občutek odprtosti in stalnega stika med družinskimi člani.
Toplina lesa kot rdeča nit interjerja
Celotna notranja zasnova temelji na povezovanju novega in obstoječega. Rdeča nit prenove so lesene obloge in pohištveni elementi, ki prostore mehko povezujejo v celoto. Les se pojavi že v vstopnem delu in se nevsiljivo nadaljuje skozi hodnik v bivalni del ter vse do mansarde. S svojo izrazito materialnostjo prostor umirja, mu daje domačnost in hkrati kljub odprtosti ohranja občutek celovitosti.
Dom, prilagojen življenju družine
Rezultat prenove je svetel, prostoren in enotno oblikovan dom, ki se brez povečanja površine odpira navzven in ponuja občutek zračnosti. Zasebni in skupni prostori so uravnoteženo razporejeni, hiša pa danes podpira ritem vsakdanjega življenja družine.
Kot poudarjajo arhitekti, uspešna prenova ne temelji le na dobri arhitekturni rešitvi, temveč predvsem na razumevanju ljudi, ki v prostoru živijo. Prav pogovor z naročniki, njihove navade, želje in predstave o »občutku doma« so bili ključ do končne, premišljene rešitve.
- Arhitektura: atelje BER.NARD – Igor Berlot, Špela Nardoni Kovač, Marko Horvat, Veronika Batistič, Lucija Draginić
- Leto izvedbe: 2022
- Površina: 126 m²
Fotografije: Miran Kambič







































































