V dotrajani stanovanjski hiši v Ljubljani je zasebni investitor videl veliko priložnost in jo zagrabil z obema rokama. V njej je videl predvsem občasni dom zase, kadar prihaja v prestolnico, in pozneje tudi kot dom za svoja otroka.
Hiša iz 60. let je veliko obetala, a je še spretneje skrivala vse svoje pomanjkljivosti, kar je pogosta težava, na katero naletimo pri prenovah. Kako iz enodružinske hiše dobiti dve udobni stanovanji in tako rešiti stanovanjski problem svojih otrok, pa je bil glavni izziv arhitektke Petre Plevnik iz arhitekturnega studia Ideas.
Investitor je povedal, da je hiša na prvi pogled izgledala še kar solidno ohranjena, določene težave oziroma presenečenja je seveda pričakoval, pa vendarle ne toliko, kot se je po začetku del pokazalo. Ampak saj veste, kako pravimo, če je dober konec, je vse dobro oziroma pozabljeno. In s končnim rezultatom je investitor nadvse zadovoljen, tako da so dodatni finančni stroški in skrbi, ki so se pojavljale med deli, že skorajda pozabljeni.
Pri tako velikem projektu, kot je bila ta prenova, sta ključna dobro sodelovanje in razumevanje. Najprej seveda med arhitektom in investitorjem, ki se morata o vsem dogovarjati in sproti obveščati oziroma odločati. Potem pa seveda tudi med samo ekipo, ki jo je v tem primeru uspešno orkestrirala Petra Plevnik.
Nepričakovani stroški so se najprej pokazali pri odkrivanju ometa, ki je padal. Tu so odkrili nepravilno napeljane elektroinštalacije, ki bi, če bi zadevo prepozno opazili, lahko povzročila tudi hude telesne poškodbe katerega izmed delavcev. Poleg popolne prenove in nove organizacije vseh inštalacij v hiši so sledili tudi arhitekturni posegi v tloris stavbe. Investitor, ki je najprej kupoval stanovanje, je moral nekako osmisliti toliko večji finančni zalogaj, ima namreč dva sinova in zdelo se mu je smiselno, da bi z investicijo poskrbel tudi za stanovanjski problem obeh sinov. Tako so v hiši uredili dve stanovanji. Da bi lahko tloris tako temeljito spremenili, je bilo treba marsikatero steno porušiti, celo nosilne, ki so jih nadomestili z armiranimi betonskimi prekladami. Te so namestili tako, da so prostori kar se da odprti in prilagojeni sodobnemu načinu bivanja. Le dimnika niso mogli prestaviti, zato se je pri načrtovanju tlorisov vse vrtelo okrog njega.
O tej hiši oziroma o stanovanju, ki so ga uredili v prej neizkoriščenih kletnih prostorih, smo že pisali. To stanovanje pa ima svoj vhod in je trenutno namenjeno oddajanju, s čimer si bo investitor vsaj deloma povrnil stroške investicije prenove.
Stanovanje v visokem pritličju
V spodnjem stanovanju najprej stopimo na hodnik, kjer so izkoristili prostor pod stopnicami. Na desni strani je majhna, a udobna spalnica za starše. Arhitektka ji je dodala karakter z vpadljivo tapeto z motivom iz narave. Tudi drugje po hiši so markantne tapete, ki prostorom dajejo močan poudarek. Naravnost po hodniku pridemo do kopalnice, kjer je tudi izkoriščen vsak kotiček. Ker je kopalnica takoj za hodnikom, se tam stopnice nadaljujejo, zato so prostor pod njimi izkoristili za umestitev tuša.
Sledi osrednji prostor, v katerem so združene odprta kuhinja, jedilnica in dnevna soba. Ta prostor je opremljen v umirjenih sivo-rjavih odtenkih, tapeta nasproti jedilne mize pa je ponovno lovilka pogledov.
Zadnji prostor v tem stanovanju je otroška sobica, ki je hkrati prehod na letni vrt, kjer je tudi pokrita terasa z letno kuhinjo. Terasa oziroma vrt je velik dobrih 50 kvadratov.
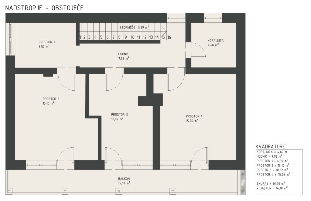
Stanovanje v nadstropju
Zgornje stanovanje je malenkost večje, meri dobrih 65 kvadratnih metrov, saj vključuje tudi vertikalni del oziroma stopnišče. Takoj ob vstopu v nadstropje je na levi strani kopalnica, nato sledita spalnica in otroška soba. Skozi hodnik ob stopnišču se vstopi v osrednji bivalni prostor. Ta je enako kot v spodnjem stanovanju: odprt ter združuje kuhinjo, jedilnico in dnevno sobo. Tudi tu najprej opazimo markantno tapeto, ki je obenem narekovala tudi modro kuhinjo. V hodniku so nad stopniščem nameščene zanimive svetilke iz pletenega trsja, ki imajo obliko rib. Zaradi slednjih in sinje modre kuhinje ima to stanovanje počitniški karakter, njegova največja prednost pa je ta, da so vse sobe povezane z dolgim balkonom, velikim približno 17 kvadratnih metrov.
- Projektiranje in interier: Petra Plevnik/Ideas
- Leto izvedbe: 2023
- Površina visokega pritličja (trisobno stanovanje s pokritim vhodom in bivalnim vrtom): stanovanje 56 m2, vrt 50 m2
- Površina trisobnega stanovanja v nadstropju: stanovanje 62 m2, balkon 14 m2
- Fotografije: Ideas






































































































