Vgradne omare so postale priljubljen element sodobnih domov, saj ponujajo vrsto prednosti, ki povečujejo tako funkcionalnost kot estetsko privlačnost bivalnih prostorov. Za razliko od prostostoječih omar so integrirane v arhitekturo prostora ter zagotavljajo brezhibno in učinkovito rešitev za shranjevanje, hkrati pa z njimi lahko ambient tudi oblikujete. So odlična izbira za vse, ki si želite izboljšati kakovost bivanja.
Oblikovanje prostora
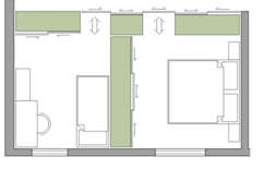
Neskončne možnosti shranjevanja, prilagojene vašim potrebam in željam, so tista prednost vgradnih omar po meri, na katero pomislite najprej. Vendar je vgradna omara še veliko več kot to. Z njo lahko prostore tudi oblikujete in predeljujete. »Z njo lahko na primer zakrijete razne nepravilnosti v prostoru in zapolnite nizek prostor v mansardi. Prav tako lahko vgradne omare v stanovanju nadomestijo pregradne stene in omogočajo različne prehode med prostori,« naštevajo pri podjetju Alples, ki je vodilni ponudnik pohištva za dom in specialist za vgradne omare v Sloveniji. Priporočajo naslednje prostorske rešitve z vgradnimi omarami:
Namesto da prostor v mansardi, ki je prenizek za uporabo, zapirate v neizkoriščeni prostor, lahko ta prostor zaprete z drsnimi vrati in služi za spravilo razne opreme.
Pogosto se dogaja, da želite otroke, ko so majhni, imeti skupaj v eni sobi, pozneje pa bi za vsakega potrebovali svojo sobo. V takšnem primeru lahko z vgradnimi omarami večjo otroško sobo enostavno razdelite v dve manjši brez dodatnih predelnih sten in umazanega dela.
Pri današnjem načinu življenja pogosto iščete fleksibilne in enostavne rešitve. Eno izmed njih nam ponujajo tudi vgradne omare po meri, saj lahko nadomestijo predelne stene, s tem da se vrata odpirajo v različne prostore. Vrata omare so hkrati tudi vrata med prostori. Ko vam takšna razporeditev ne ustreza več, jo lahko z minimalnimi posegi enostavno tudi spremenite.
Z vgradnimi omarami se lahko oblikuje in zapolni garderobni prostor na najrazličnejše načine, od klasične razporeditve omar po obodu do inovativnih rešitev.
Organizacija notranjosti omar
Ker so vgradne omare podjetja Alples izdelane po meri, lahko tudi njihovo notranjost oblikujete tako, da bo najbolj ustrezala vašim potrebam. To storite z izbiro polic, predalov, obešalnikov in drugih dodatkov, ki omogočajo, da bodo shranjene stvari pregledne in enostavno dostopne. Ideje in rešitve za popolno organizacijo vgradne omare vključujejo:
- Police. Police so osnovni gradnik vsake garderobne omare. Z njimi lahko ustvarite dodatne nivoje za zlaganje oblačil, čevljev, škatel ali drugih dodatkov. Prilagodljive police, ki jih lahko po potrebi premikate, vam omogočajo, da omaro prilagodite svojim trenutnim potrebam.
- Predali. Predali z blaženjem in polnim izvlekom omogočajo enostaven dostop do vsebine brez nepotrebnega hrupa in tresljajev. Za še večje udobje lahko izberete predale s funkcijo push odpiranja, ki omogoča odpiranje z enostavnim pritiskom. Ti predali so odlični za shranjevanje manjših oblačil, kot so spodnje perilo, nogavice in dodatki.
- Izvlečni obešalniki. Izvlečni obešalniki so idealni za plitve omare, kjer je dostop do zadnjega dela omare omejen. Omogočajo, da obešalnike povlečete ven, kar olajša pregled in dostop do oblačil. So odlični za majhne prostore, kjer vsak centimeter šteje.
- Nagibni obešalniki. Nagibni obešalniki so zasnovani za visoke omare, kjer so zgornje police težko dosegljive. S sistemom nagibanja lahko obešalnike spustite na dosegljivo višino in tako enostavno dostopate do oblačil.
- Nosilci za hlače in kravate. Nosilci za hlače in kravate omogočajo pregledno in enostavno shranjevanje teh kosov oblačil. Izvlečni nosilci za hlače omogočajo, da hlače obesite brez gubanja, nosilci za kravate pa poskrbijo, da so kravate vedno na svojem mestu in pripravljene za uporabo.
- Stopnička za lažji dostop. Za visoke omare, kjer je zgornji del težje dostopen, je praktično imeti vgrajeno stopničko. Ta vam omogoča, da varno in enostavno dosežete tudi najvišje police.
Dolga življenjska doba in malo vzdrževanja
Vgradne omare ponujajo številne možnosti uporabe in oblikovanja izvirnih rešitev, ki popestrijo vaš dom. Poleg odličnega izkoristka prostora so tudi estetsko privlačne, saj so čistih linij, brez neenakomernih praznin in robov. So bolj trpežne in imajo daljšo življenjsko dobo od standardnih omar, prav tako potrebujejo manj vzdrževanja, saj ni nabiranja prahu in umazanije na težko dostopnih mestih. Poleg tega jih lahko izboljšate tudi z raznimi dodatki, kot so osvetlitev, ogledala in posebni mehanizmi za odpiranje in zapiranje.
»Z vgradno omaro po meri boste pridobili prostor za shranjevanje, prilagojen vašim individualnim potrebam in željam. Izbirati je mogoče med drsnimi in klasičnimi vrati. Pri obeh tipih vrat je na voljo veliko različnih materialov in barv, od lesnih in barvnih dekorjev ter dekorjev v visokem sijaju, do lakiranih izvedb, barvnih stekel in ogledala. Lahko se odločite tudi za kotno vgradno omaro ali pa omaro v poševni mansardi,« pravijo pri podjetju Alples, kjer so prepričani, da so vgradne omare prava izbira za vse, ki iščete praktične, estetske in trajne rešitve za shranjevanje.
»Prednost naših vgradnih omar je skladnost s preostalim Alplesovim pohištvom. Ker so pri vgradnih omarah na voljo tudi barve drugih programov, te lahko kombiniramo s programi spalnic, dnevnih sob, otroških sob… Tako je mogoče opremiti celoten prostor z enakim modernim pohištvom,« še zaključujejo.
Več o Alplesovih vgradnih omarah lahko izveste na spletni strani ali pa prelistajte njihov katalog, ki je dostopen tukaj.
Sponzorirana vsebina

























