Hiša Verdea v Logatcu je del enote dvojčka, grajenega za trg. Izhodišče projekta je zato predstavljalo jasen okvir – tipizirano zasnovo, omejeno kvadraturo in že začrtane prostorske rešitve. Arhitektka Vivijana Zorman se je z ekipo v projekt vključila dovolj zgodaj, da je lahko posegla v tlorisno razporeditev in prilagodila inštalacije novi organizaciji prostora. Cilj je bil jasen: objektu vdihniti osebni pečat in ga prilagoditi življenjskemu slogu naročnikov.
Hiša meri 131 kvadratnih metrov in je zasnovana v dveh etažah (P + M). Vsak kvadratni meter je skrbno premišljen in izkoriščen, brez občutka utesnjenosti.
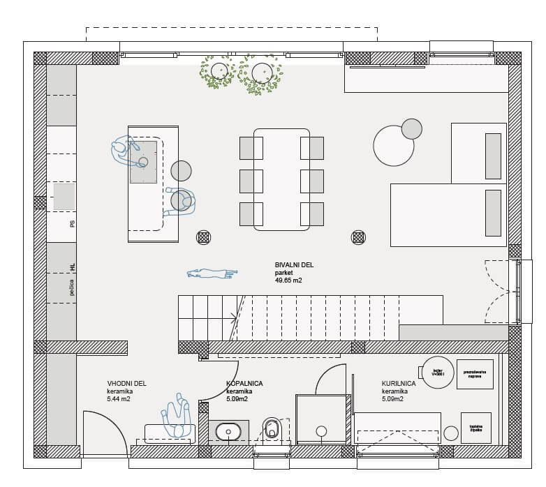
Pritličje kot odprt bivalni oder
Spodnje nadstropje je skoraj v celoti namenjeno bivalnemu prostoru. Vstopni del, manjša kopalnica in tehnični prostor so zadržani ob robu, osrednji del pa se odpira v enoten ambient kuhinje, jedilnice in dnevne sobe. Glavni poudarek prostora so lebdeče, konzolne stopnice, ki delujejo kot skulpturalen element interjerja. Pod njimi je umeščen večnamenski podest iz kvarca, ki v sebi skriva shranjevalne predale, ob oknu pa se zaključi s knjižnimi policami in integriranim koritom za rastline. Ta poteza mehko poveže arhitekturo z naravo in v prostor vnese organsko dinamiko.
Jedilnica v naravnih tonih stoji v središču prostora, kuhinja pa izstopa z umirjenim zelenim odtenkom front. Kuhinjski otok je oblikovan neklasično, z izrazitim kovinskim okvirjem, ki mu daje lahkotnost in grafično ostrino. Ob oknu se niz omar zaključi s sedalno nišo – intimnim kotičkom, ki predstavlja podaljšek dnevne sobe in odpira pogled proti zunanjosti.
Materialna paleta je zadržana in naravna: svetel hrast, bela in različni zeleni poudarki ustvarjajo umirjeno, a prepoznavno identiteto doma.
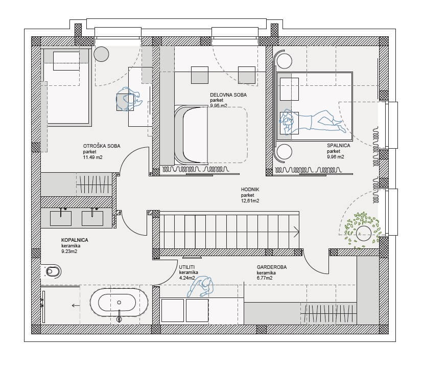
Mansarda: svetloba, steklo in krožni promet
Tudi mansarda je zasnovana odprto in povezano. Spalnica in delovna soba, ki lahko služi tudi kot soba za goste, sta ločeni s stekleno steno in drsnimi vrati. Takšna rešitev omogoča, da svetloba prodre globlje v hodnik in da prostori med seboj ostanejo vizualno povezani. Hkrati je mogoče z zavesami ustvariti popolno zasebnost.
Posebnost tlorisa predstavlja t. i. krožni promet, kjer se garderoba, utility in kopalnica funkcionalno povezujejo v logično zaporedje. Mansardna poševnina je tu že izrazitejša, a jo arhitektka izkoristi kot prednost. Strešna okna v prostor prinašajo obilico naravne svetlobe, zato prostori kljub nižjim višinam delujejo svetlo in zračno.
Intimni detajli in mehka dramatika
Spalnica izstopa z izrazito tapeto z motivom angelskih kril, ki prekriva steno in strop ter mehko ublaži poševnino. Element deluje kot zaščitni objem in prostoru doda subtilno simboliko. Zaobljeno leseno vzglavje postelje v kombinaciji z oblazinjenim delom poudari občutek topline, zavese pa omogočajo, da spalni del po potrebi popolnoma zastremo.
V kopalnici je prostor organiziran premišljeno: prostostoječa kad in tuš tvorita osrednji element, umivalniški niz pa je umeščen v nišo, ki jo vizualno in funkcionalno v celoti zapolnjuje.
Hiša, ki preseže tipologijo
Čeprav je bila hiša postavljena v razmeroma rigiden okvir tipske gradnje, rezultat nikakor ne deluje generično. Z natančnim premislekom tlorisa, poudarkom na naravnih materialih in z nekaj izrazitimi, a premišljenimi oblikovnimi potezami je nastal unikaten interjer, ki je jasno prilagojen naročnikom – in hkrati arhitekturno dosleden.
- Avtorica projekta: Vivijana Zorman
- Sodelavci: Darja McDonnell
- Leto načrtovanja: 2024/2025
- Leto izvedbe: 2025
- Površina: 131 m²
Fotografinja: Ana Skobe
















































































