Projekt, ki zajema zasnovo interierja, na novo zgrajene družinske hiše, s čudovitimi razgledi, je zaradi svoje obsežnosti, zahteval veliko premisleka. Naročnika, ki poslovno in tudi zasebno veliko potujeta ter posledično precej časa preživita v hotelih, sta si tudi v svojem bodočem domu želela hotelsko minimalističen interier. Njuna vizija bodočega doma je varno in elegantno zatočišče, ki ob delavnikih nudi popolno nasprotje mestnega vrveža. Vrniti se domov v naravo in topel objem svoje hiše, ki nudi sprostitev in umiritev misli.
Arhitektka Petra Plevnik iz arhitekturnega studia Ideas, je njuni viziji v celoti prisluhnila in oblikovala interier, ki dobesedno vabi v svoje naročje. Investitorja sta na tem mestu, kjer stoji danes novogradnja, že imela starejšo a prenovljeno hišo, katero so porušili. Objekt zajema klet, pritličje in mansardo.
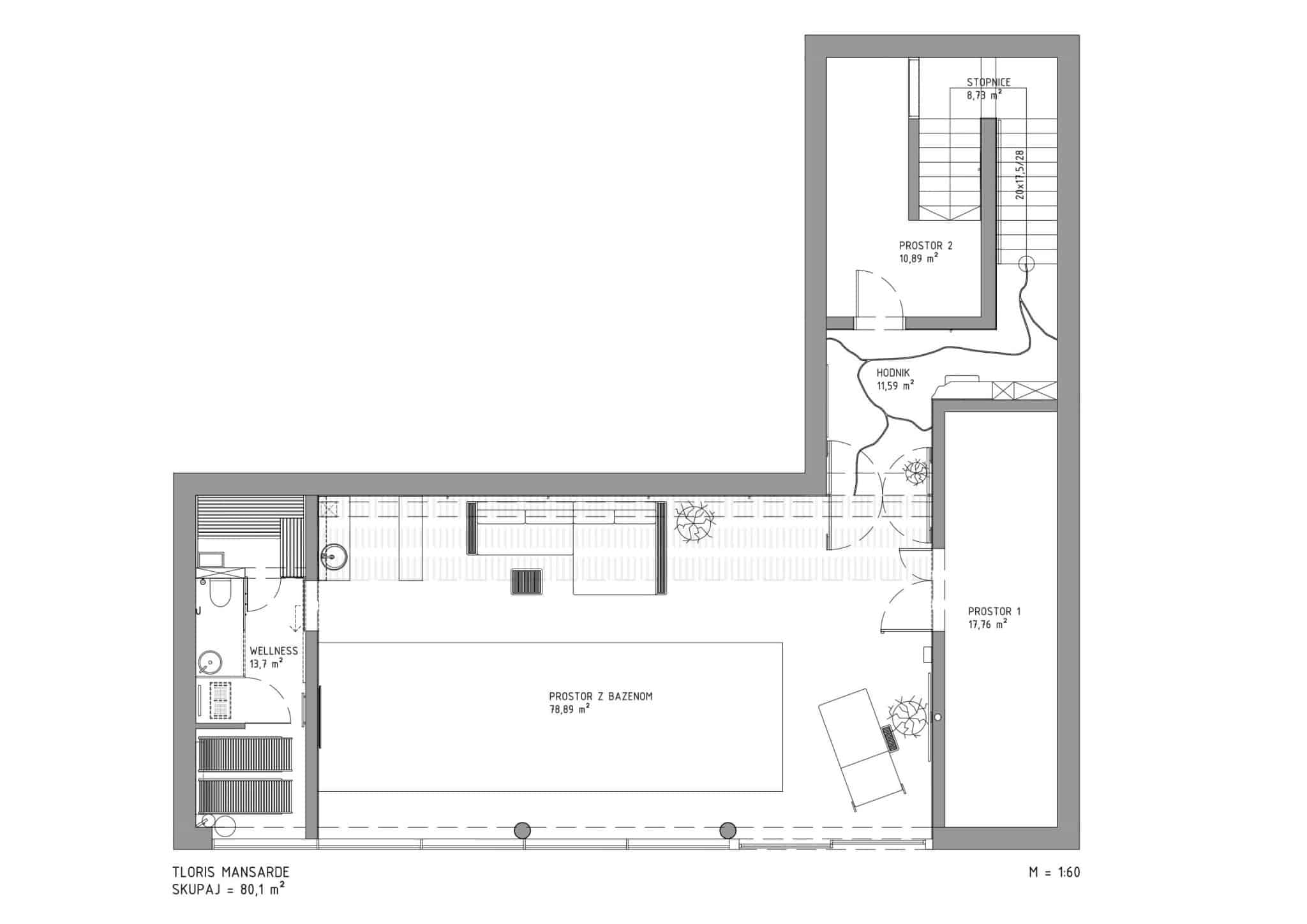
V kletnih prostorih se nahajajo bazen, savna s tušem in straniščem ter ostali prostori za vzdrževanje. Pokrit bazen in savna tvorita pravi mali domači SPA, kjer se po napornem dnevu družina lepo sprosti. Naj poudarimo, da je klet po eni strani v celoti odprta, tako se pogled nemoteno razširi tudi na zunanjost. Prelepa okoliška narava pa nudi odlično kuliso. Prostor je sicer zelo privaten, obenem pa je to lahko tudi zelo prijeten prostor za druženja s prijatelji. V bazenu, tako kot tudi drugje po hiši, igrajo pomembno vlogo svetila, ki ob temnejših dneh oziroma ob večerih ustvarjajo prijetno igro svetlobe. Dostop v klet je omogočen preko hodnika in stopnišča, ki sta oblikovana z elegantnim pridihom. Slednjega opazimo v dobro premišljenih detajlih, kot so na primer intarzije ter posebne gravure v steklenih površinah.
V pritličju se nahaja glavni vhod, ki nas po hodniku vodi do glavnega prostora hiše. Iz hodnika je možen dostop tudi do garderobe in sanitarij za goste, pralnice, shrambe ter garderobne sobe ter glavne spalnice z ločeno kopalnico.
Hodnik je po celotni dolžini opremljen z vgradnimi omarami za shranjevanje. Stene in pohištvo je arhitektka oblekla z enako oblogo wenge furnirja. Tako so vrata s skritimi panti, ki vodijo v garderobno sobo in glavno spalnico popolnoma skrita oziroma neopazno integrirana v niz vgradnih omar. Da bi razbila precej dolg niz temnejše lesene obloge je med njih vstavila dve visoki niši s kovinskim bakrenim sijajem. Precej nepričakovan, obenem pa dekorativen element, ki ob vstopu v prostor preseneti in navduši z eleganco.
Iz hodnika se dostopa tudi v WC za goste in garderobo. Pri slednji je bila dodana omara za čevlje, katere fronte so oblečene v ogledalo. Nasproti tega je veliko konzolno sedišče, ki omogoča udobno preobuvanje in hiter pregled zadnjih detajlov pred odhodom od doma. Vhod v WC za goste, je prav tako delno skrit. Stena je namreč oblečena v nekoliko svetlejšo leseno oblogo od preostanka hodnika. Na njej pa komaj opazimo vrata za WC, ki imajo skrite podboje.


Iz hodnika se vstopa tudi v glavno spalnico, katere vstopna vrata so obiskovalcem nevidna, saj so integrirana v niz omar v hodniku. Zakonska postelja ima slikovito vzglavje, ki ga je arhitektka oblikovala s pomočjo vgrajenega lesenega okvirja v katerem je skrita led osvetljava. Tu sta tudi dve nočni omarici, bralni lučki in atraktivna tapeta v zelenih odtenkih. Vzorec na tapeti je abstrakten in na prvi pogled deluje kot stilizirana abstraktna narava. Spalnica ima svojo kopalnico, ki je napol skrita za zastekljeno steno. Tudi v kopalnici se nadaljuje umirjeno in luksuzno vzdušje, ki ga še dodatno poudarijo zlati detajli. Pridih elegance je tu arhitektka pričarala s kombinacijo kamna in lesa ter velikih ploščic z vzorcem marmorja in kompaktnimi ploščami, ki so vodoodporne in se jih da dobro očistiti. Hkrati pa lahko tu vsak kotiček izkoristimo za shranjevalno površino.
V osrednjem bivalnem prostoru, ki se prav tako nahaja v pritličju, kjer so združeni kuhinja, jedilnica in dnevna soba, je osrčje doma. Tukaj se družina največ druži, saj zelo radi kuhajo in se posvečajo kulinariki. Tudi tukaj je arhitektka, podobno kot v hodniku, uporabila precej lesa za začimbo pa dodala nekaj bronastih detajlov. Zelo velik poudarek je tudi na razsvetljavi, ki je za prijeten ambient izjemnega pomena. Tako lahko vidimo skrbno izbrane lestence, ob večerih pa piko na i doda tudi skrita ambientalna razsvetljava. Zaradi inštalacij (kuhinjska napa ter prezračevanje), je strop v kuhinji in jedilnici nekoliko spuščen, medtem ko se nad sedežno garnituro pogled nemoteno dvigne vse do galerije.
Kuhinja je oblikovana brez ročajev oziroma so ti skriti. Za čist izgled kuhinje pa poskrbi tudi Hawa sistem zapiranja, ki ga je arhitektka uporabila pri niši, s pomočjo katerega se morebitni nered v kuhinji hitro skrije.
Dnevni prostor je zelo odprt iz njega pa vodijo tudi stopnice v odprto mansardo, kjer se nahaja galerija s knjižnico. Še en prostor sprostitve in kontemplacije, ki ga bo družina zagotovo veliko uporabljala. Iz galerije se odpira pogled nad celotnim bivalnim prostorom, občutek širine in odprtosti pa je arhitektka dosegla tudi z uporabo steklene ograje na galeriji. Drugi del mansarde je dostopen po hodniku, ki vodi od galerije v smeri velike kopalnice z kadjo in tušem. Zaradi strešnih poševnin v mansardi je bilo tukaj potrebno pohištvo oblikovati premišljeno. Dodatne shranjevalne površine ob tušu in kadi pa je arhitektka umestila v stenske niše.
Nasproti kopalnice je delovna soba za dva. Naročnika sta želela skupni delovni prostor, vendar z neko nevsiljivo delitvijo na njen in njegov del sobe. Mrežasta pregrada med delovnima mizama je ravno prav diskretna. Skozi njo pronica svetloba in tudi partnerja se lahko občasno srečata s pogledi, pa vendarle se ve, kje ima kdo svoj kotiček.
Hodnik na galeriji pa vodi tudi do zadnje, a vendar ne najmanj pomembne sobe. To je velika in udobna otroška soba. Ta je pravi mali raj za igro, počitek in branje. Soba za deklico je zares velika, tako velika, da lahko dekle, ki se ukvarja s plesom, kdaj pa kdaj tudi zapleše. Soba je z lesenimi letvicami, nameščenimi ob posteljo, navidezno razdeljena. Na eni strani je spalnica z mehko oblazinjeno steno ob postelji. Na drugi strani, tam kjer je pisalna miza pa delovna soba. Vmes je še kotiček za lepotičenje z malo mizico in ogledalom.
Poseben, markanten pečat pa ima ta soba predvsem zaradi velikega panoramskega okna. To je opremljeno z oblazinjeno nišo, ki kar vabi k branju ali samo sedenju in sanjarjenju ob pogledu na prelepo naravo, ki obdaja ta družinski dom.
Arhitektura: Petra Plevnik, IDEAS





































































































