V poplavi novih hiš in stanovanj s prostori nevtralnih barv (bela, siva, naravna barva lesa) izstopajo redki primeri domov, v katerih se naročniki in arhitekti upajo poseči po paleti močnih barv. Projektantka notranje opreme Lidija Rutar je s sodelavko Robin Jeram prisluhnila naročniku, grafičnemu oblikovalcu, in mu v novem stanovanju zanimive večstanovanjske stavbe Elipsa v Ljubljani uredila zares barvit dom.
Elipsa (avtorji arhitekturni biroji Sadar+Vuga, Arhipro in Studio Krištof) je posebna že po svoji pakrožni obliki, razgibanem pročelju, metino zeleni fasadi, balkonih z rastlinami in s keramiko obloženimi tlemi. Pravo okolje za naročnika, ki je snovalki notranje opreme presenetil z zahtevo, naj se ob vstopu v njegov novi dom odpre nov, drugačen svet.
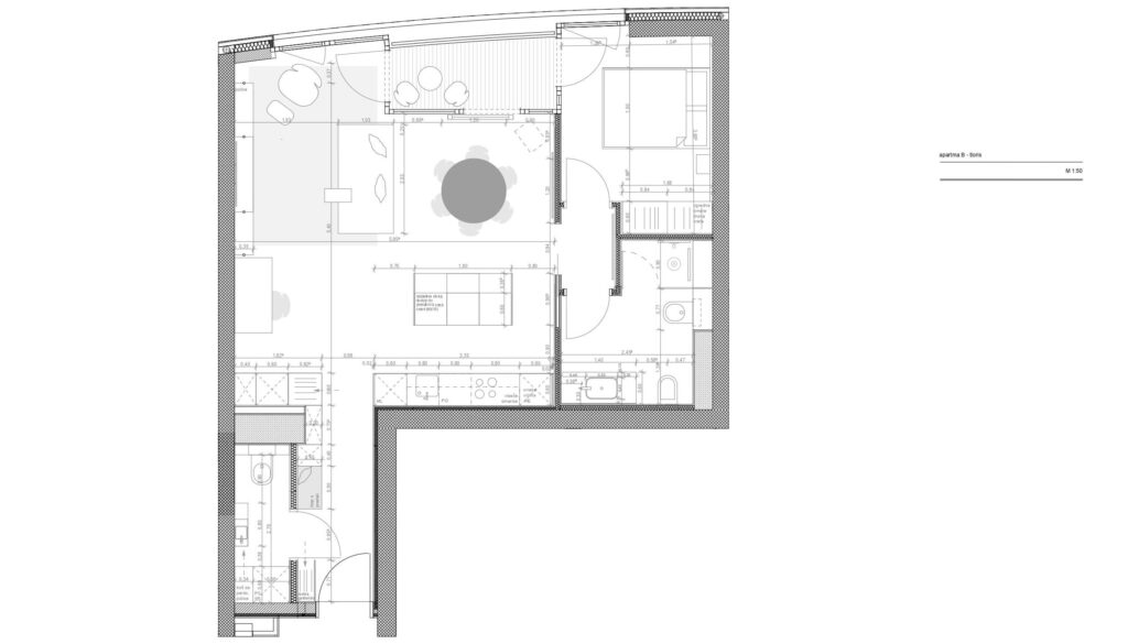
Zasnova 56 kvadratnih metrov velikega stanovanja je preprosta. Ob vhodu sta hodnik in mala toaleta, nato se prostor odpre v osrednji bivalni del s kuhinjo, jedilnico in dnevnim prostorom. Majhen hodnik loči bivalni del od spalnega dela s kopalnico.
Pohištvo so zasnovali kar se da neopazno, v ospredju so barve in vzorci, ki jih opazimo že v preddverju stavbe. Zunanjost se nadaljuje v stanovanje: v predprostoru je zelena, kakršna je na stropu hodnika v stavbi, nadaljuje se na stropu in garderobnih omarah, ki v obliki črke L sledijo v bivalni del. V toaleti je zanimiva kockasta črno-bela tapeta, ki z barvami in ritmom spominja na talne ploščice v celotni stavbi. Zanimiva zamolkla tapeta se v predprostoru nadaljuje v dimljeno ogledalo, ki daje globino prostoru, hkrati pa sledi barvi tapete. Da bi poenotili barvno shemo, so prvotno bela vhodna vrata prebarvali v antracitno barvo.
Bivalni prostor je odprt, zaznamujejo ga odprte police, vpete v tla in strop, med katerimi je prostor za delo in televizor. Police nosijo veliko knjig in grafik. Kuhinja je otočna, saj je taka primerna za občasne obiske in pogovore s prijatelji. Bordo delovni pult se ujema z jedilno mizo.
Zofa je modularna, s premičnimi vzglavji, ki se lahko prilagodijo načinu sedenja ali ležanja. Okrogla miza in zanimiva luč nadaljujeta mehkobo linij zunanjega pročelja.
V osrednjem prostoru prevladujejo glavne barve, ki se ponavljajo tudi v drugih prostorih: obiskovalec najprej upre oči v zažgano rdečo na steni, ki jo umirita kontrastna zamolkla zelena in antracitna, ki se pojavi na kuhinji, lestencu in knjižnih policah za globino. Močne barve so ozadje številnim grafikam oblikovalca. Pravilne linije pohištva in sten omili bel doprsni kip, akt, delo lastnikove pokojne žene, prav tako umetnice. Vzorci na blazinah so tako le pika na i k celotni zgodbi.
Osrednji bivalni del nas skozi majhen hodnik, odet v zažgano rdečo na vratih, stropu in stenah, povabi v umirjeno spalnico. Tu prevladuje modra na omarah in zavesah. Tapeta z vzorcem nežnih oblakov se s stene za posteljnim vzglavjem nadaljuje na strop, tako vzbudi občutek, kot bi zrli v nebo. Kopalnica je znova barvita: zelen steklen umivalnik na rožnatem predalniku.
Morda bi komu obilje močnih barv vzbudilo nelagodje, nemir. V resnici pa takšna paleta zares odraža osebo, ki je tu doma.
Notranje oblikovanje: Habitare
Fotografije: Vid Rotar





































































