Staromeščanska stanovanja s svojo velikodušno višino prostorov, bogatimi stavbnimi detajli in jasno prostorsko hierarhijo ponujajo izjemen potencial, hkrati pa od arhitektov zahtevajo veliko občutljivosti. Prenova stanovanja v središču Ljubljane, ki jo je zasnoval arhitekturni biro STRIP LAB, je primer premišljenega posega, ki se ne odloča za brisanje preteklosti, temveč jo razume kot izhodišče za sodobno bivanje.
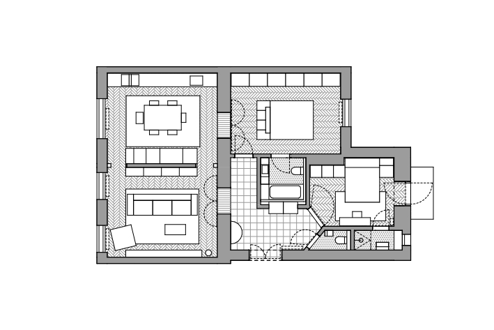
Osnovno vodilo prenove je bilo ohraniti značaj staromeščanskega tlorisa, obenem pa ga prilagoditi današnjim bivalnim navadam. Arhitekti so se zavestno izognili radikalnim posegom v konstrukcijo in prostorsko zasnovo ter namesto tega posegli po strategiji subtilnih intervencij. Prostor so odprli tam, kjer je to omogočalo boljšo funkcionalnost in pretočnost, ob tem pa ohranili ključne arhitekturne elemente – originalna vrata, stavbno pohištvo, parket in višino prostorov, ki ostajajo nosilci identitete stanovanja.
Eden od osrednjih posegov prenove je nova organizacija bivalnega dela. Kuhinja, jedilnica in dnevni prostor so povezani v enotno, odprto celoto, ki deluje svetlo in zračno, hkrati pa ohranja občutek razmejitve posameznih funkcij. Kuhinjski elementi so zasnovani kot natančno umeščeno pohištvo, ki se z materialnostjo in proporci navezuje na obstoječi prostor. Lesene fronte, kamnite in keramične površine ter umirjena barvna paleta ustvarjajo nevpadljivo, a izrazito materialno bogato ozadje vsakdanjega bivanja.
Posebno pozornost so arhitekti namenili detajlom po meri. Vgradne omare in pohištveni volumni so oblikovani kot samostojni arhitekturni elementi, ki prostor členijo, ne da bi ga zapirali. Temnejši, skoraj zrcalni površinski zaključki v spalnem delu subtilno reflektirajo prostor in svetlobo ter hkrati ustvarjajo občutek intime. Prehodi med prostori so poudarjeni z obstoječimi okvirji vrat, ki so bili skrbno obnovljeni in barvno prilagojeni novi celostni podobi stanovanja.
Kopalnice sledijo istemu konceptu zadržane sodobnosti. Materialna kombinacija keramike, kamna in lesa deluje umirjeno in brezčasno, prostorska zasnova pa je jasna in funkcionalna. Tudi tukaj je opazna želja po tem, da se novi elementi ne vsiljujejo prostoru, temveč ga dopolnjujejo in nadgrajujejo.
Prenova temelji na razumevanju, da kakovost bivanja ne izhaja iz spektakularnih gest, temveč iz natančnih odločitev, spoštovanja konteksta in premišljenega odnosa do obstoječega. Stanovanje danes deluje kot harmonična celota, v kateri se zgodovinski značaj prepleta s sodobnimi potrebami in ustvarja okolje, prilagojeno sodobnemu načinu življenja, a trdno zasidrano v prostoru in času, iz katerega izhaja.
Pomemben vidik prenove je bil tudi tehnični del, ki je zaradi starosti stavbe zahteval popolno zamenjavo elektro in strojnih inštalacij. Arhitekti so se pri tem soočili z izzivom, kako sodobne sisteme vpeljati v zgodovinski okvir brez vizualnih motenj. Inštalacije so zato večinoma potekale v tlaku, kar je omogočilo, da so zidovi večinoma ostali nedotaknjeni. Takšen pristop je bistveno prispeval k ohranjanju izvirnega značaja prostorov in njihove materialne kontinuitete.
Posebno pozornost so namenili tudi vprašanju kroženja zraka in bivalnega ugodja. Visoki stropi z zaobljenimi vogali, značilni za staromeščanska stanovanja, niso le estetski element, temveč pomembno vplivajo na mikroklimo prostora. Arhitekti so se zato odločili, da jih čim bolj ohranijo in izpostavijo, morebitne tehnične posege pa omejijo na manj vidne dele stanovanja.
Pomemben nosilec identitete prenovljenega stanovanja so tudi obstoječi kosi pohištva naročnikov, ki so bili premišljeno vključeni v novo zasnovo. Masivna jedilna miza, stari lestenci in drugi osebni predmeti prostoru dodajajo plast zgodbe, ki presega arhitekturno zasnovo in jo zasidra v konkretno bivanjsko izkušnjo. Novi materiali in elementi so zasnovani tako, da teh kosov ne preglasijo, temveč jim ustvarijo ustrezno ozadje.
Prenova staromeščanskega stanovanja v Ljubljani tako ni zgolj arhitekturni projekt, temveč proces uravnoteževanja med ohranjanjem dediščine in sodobnimi potrebami uporabnikov. Biro STRIP LAB je z natančnimi, zadržanimi posegi ustvaril dom, ki ohranja značaj časa, v katerem je nastal, hkrati pa ponuja udobje in prostorsko jasnost sodobnega bivanja. Prav v tem ravnotežju med starim in novim se kaže trajna vrednost projekta.
- Projektanti: STRIP LAB, d. o. o.
- Leto načrtovanja: 2022
- Leto izvedbe: 2023
- Površina: 106 m²
Fotografije: Strip Lab






































































