Kako naseliti garsonjero? Kako osmisliti nujne pohištvene kose, da bodo ponujali kar najbolj prostrano bivanje? Kako sploh - bivati?
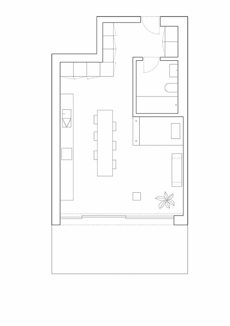
Arhitektki Nika van Berkel in Ada Finci Terseglav sta vsa ta vprašanja zagrabili kot bika za roge in na 44 m2 oblikovali preprosto rešitev. “Namesto, da bi naseljevali prostor z veliko manjšimi objekti, sva stanovanje oblikovali le z nekaj odločnimi potezami,” povesta. Ja, tako preprosto je. Poleg velike garderobne omare, ki ves shranjevalni prostor ponudi že pri vhodu, sta v stanovanje vnesli še štiri večje, a lahkotno oblikovane pohištvene kose: posteljo, nizek kuhinjski niz, dolgo večnamensko mizo ter prosojen knjižni regal, ki navidezno zalebdi med stropom in tlemi.

Te štiri preproste poteze – kuhinjo, mizo, regal in posteljo – sta postavili v jasno določenih vzporednih pasovih vzdolž stanovanja. “Fascinirani sva nad idejo, kako postavitev objektov v prostoru vpliva na tokove premikanja in subjektivno dojemanje prostorskih meja,” povesta o svoji filozofiji dela. Gotovo je vzporedna postavitev pripomogla k temu, da se prostor navidezno podaljša vzdolž glavne smernice gibanja, skozi okno, v zunanjost.
Vsi pohištveni kosi so izdelani po meri, v preprostih oblikah ter klasičnih materialih in barvah – v javorjevem furnirju, krtačenem travertinu in svetlo sivo barvanem mediapanu. Pohištvo je natančno odmerjeno in elegantno proporcionirano. Garsonjera je s tem dobila dolgi rok uporabe, hkrati pa postala prazno platno, na katerem lahko lastnik pusti svoj pečat. “Z razvojem nekonvencionalnega arhitekturnega jezika, ki išče meje med arhitekturo in umetnostjo, raziskujeva nenavadno in dragoceno v vsakdanjem,” povesta arhitektki. Tako v prostoru najdemo številne dodatke za dom, ki odražajo duha časa: elegantno svetilo nad jedilno mizo v zlatem tonu, številne grafike in sobne rastline, barvite jedilniške stole ter ročno izdelano keramiko… Dodatke, ki se bodo tekom let menjali, in vsakič znova na ogled postavili lastnikove interese – in njegovo osebnost.
V stanovanju je tako ustvarjen kompleksen dialog. Dialog med jasnim oblikovanjem in otroško fascinacijo nad barvami in oblikami; med prostranim, navzven usmerjenim bivanjem in notranjim, intelektualnim svetom lastnika; dialog med majhno kvadraturo in veliko širino duha.
Interier: Studio Finci van Berkel (Nika van Berkel, Ada Finci Terseglav)









Fotografije: Klemen Ilovar
























































