Zadružne hiše, ki so v Ljubljani začele nastajati že v dvajsetih letih prejšnjega stoletja, so bile odgovor na takratno stanovanjsko problematiko in hkrati odraz naprednega razmišljanja o kakovosti bivanja. Grajene so bile preprosto, racionalno in ekonomično, a z jasnim konceptom: hiša z vrtom, dovolj svetlobe, zračnosti in zelenja. Ena najbolj znanih vrtnih kolonij je nastala na Viču, manj znan, a prav tako zanimiv niz takšnih hiš pa se je oblikoval tudi na robu Rožne doline. Čeprav številne med njimi danes niso več prepoznavne v svoji izvirni podobi, še vedno nosijo prostorski potencial, ki ga zna sodobna arhitektura znova odkriti.
Ena takšnih je tudi hiša B2 v Rožni dolini, zgrajena leta 1927 kot del načrtovane, a nikoli povsem realizirane zadružne zazidave. V skoraj stoletju obstoja je doživela številne prezidave, prizidke in spremembe, ki so zabrisale njen prvotni značaj in jo postopno odrezale od vrta. Prav ta prekinjena vez med hišo in zelenim ozadjem parcele je postala izhodišče za njeno temeljito, a spoštljivo prenovo.
Hiša, ki je namesto rušitve doživela novo življenje
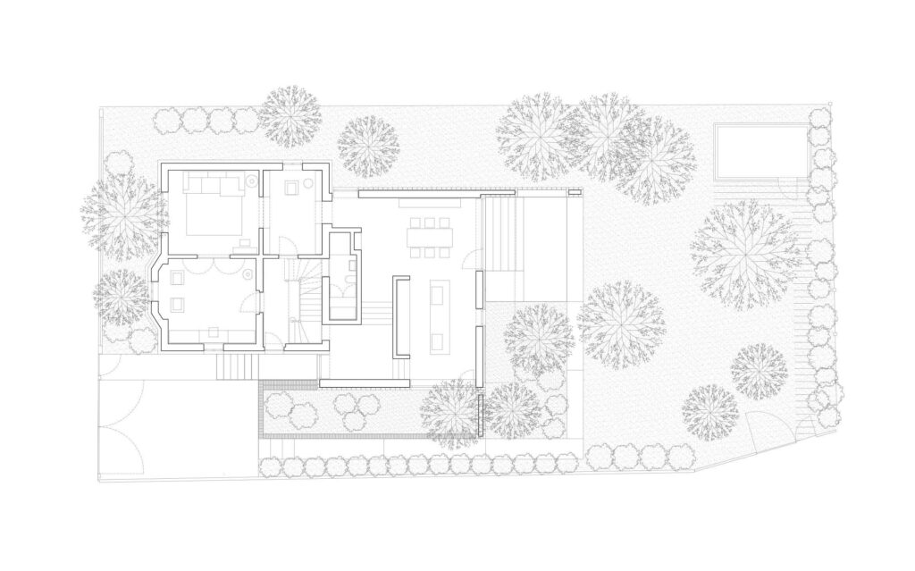
Ob začetku prenove bi bilo hišo mogoče porušiti in na parceli zgraditi nov objekt – a arhitekti iz ARP studio so v obstoječi stavbi prepoznali dovolj kakovostno konstrukcijo, primerno merilo in dobro umeščenost na parcelo, da so se odločili za ohranitev osnovnega volumna. Odstranjene so bile vse poznejše dozidave, ki so sčasoma zasedle severni del hiše in povsem onemogočile stik pritličja z vrtom.
V obstoječi hiši so v pritličju razporejeni dnevni prostori, v nadstropju pa spalnice. Bistveni prostorski preobrat pa prinese nov opečni prizidek na severni strani, s katerim se parter razširi proti vrtu. Novi del ni zamišljen zgolj kot funkcionalna razširitev, temveč kot prostor, ki hišo postopno odpre navzven in ji vrne tisto, kar je prvotna zadružna zasnova vedno že imela – neposreden stik z zelenjem.
Prizidek kot prostor med notranjostjo in vrtom
Opečni prizidek je pritličen in v celoti podrejen formatu izbrane opeke, ki postane osnovni konstrukcijski in oblikovni modul. Zidovi se podaljšujejo v vrt in brišejo jasno mejo med notranjim in zunanjim prostorom. Na mestih prekinitev zidov se pogledi, svetloba in prostori prepletajo, bivalni prostor pa se naravno razširi tudi na zunanjo teraso.
V prizidku so nova okna na vse štiri strani neba, zato je prostor enakomerno osvetljen skozi ves dan. Svetloba prihaja globoko v notranjost hiše, pogledi pa potujejo skozi zaporedje prostorov vse do vrta. Prav ta prostorska odprtost danes najbolj zaznamuje novo življenje hiše.
Dva obraza iste hiše
Zunanja podoba obstoječe hiše je bila oblikovno posodobljena z večjimi okni, nižjimi parapeti in tenkimi profili stavbnega pohištva. Nova okna ne posnemajo historičnega izvirnika, temveč iščejo sodoben, a zadržan izraz. Ulična fasada ostaja mirna in vpeta v niz sosednjih hiš, vrtna stran pa s sodobno opečno arhitekturo jasno razkrije, da gre za poseg našega časa. Hiša ima danes dva obraza – starega in novega – a deluje kot enovita celota. Med njima ne gre za tekmovanje, temveč za dialog med različnima obdobjema.
Notranjost, ki ohranja spomin in sprejema sodobnost
V interjerju se prepletata staro in novo. Leseno stopnišče, eden redkih ohranjenih avtentičnih elementov stare hiše, ostaja pomemben nosilec prostorske identitete in spomina. V pritličju se prostori nizajo drug v drugega: od delovnega kabineta in prehodne knjižnice do osrednjega bivalnega prostora v prizidku.
Materialna podoba je zadržana, a izrazna. Beton, les, steklo in bele stene ustvarjajo umirjeno ozadje, v katerem pridejo do izraza svetloba, prostorski prehodi in pogledi navzven. Kuhinja, jedilnica in dnevni prostor so povezani v enoten ambient, ki se z velikimi zasteklitvami odpira proti vrtu. V nadstropju so spalni prostori z izhodom na strešno teraso, od koder se pogled znova odpira v zelenje Rožne doline.
Prenova kot razmislek o arhitekturni dediščini
Hiša B2 ni le uspešna prenova enodružinske hiše, temveč tudi arhitekturni razmislek o usodi anonimne stavbne dediščine. Projekt odpira vprašanja, kako danes obravnavati staro, kako jasno naj bodo vidni sodobni posegi in kako lahko arhitektura hkrati spoštuje preteklost ter odgovarja na potrebe sodobnega bivanja. Prenovljena hiša danes ponovno živi svojo prvotno idejo – kot dom z vrtom, kot prostor svetlobe, prehajanja in povezanosti z zunanjim okoljem.
Arhitektura: ARP studio (Matjaž Bolčina, Ernest Milčinović, Urška Bertok Herman, Jan Žonta)
Fotografije: Ana Skobe

































































