Na odmaknjeni parceli v Selu pri Mirni, sredi mehko valovite krajine, stoji Hiša Kozjek – sodobna novogradnja, ki nadaljuje logiko prostora, kjer je nekoč že stala stara kmečka hiša. Projekt Studia Mika, d. o. o., ni zasnovan kot izrazita arhitekturna gesta, temveč kot tiha, zadržana prisotnost v okolju, ki jo obdaja. Njena moč je prav v tem, da se z okolico ne primerja, temveč se z njo povezuje.
Nova hiša nadomešča dotrajano kmečko stavbo, ki zaradi slabega stanja ni bila primerna za obnovo. Ob njej sta ohranjena kamnita klet in kozolec, ki skupaj z novim objektom tvorita smiselno prostorsko celoto. Dostop, orientacija in odpiranje pogledov so bili premišljeni že v preteklosti, zato jih arhitekti niso želeli spreminjati, temveč nadgraditi. Nova stavba tako prevzema logiko obstoječega in jo prilagaja sodobnemu bivanju, brez prekinitve kontinuitete prostora.
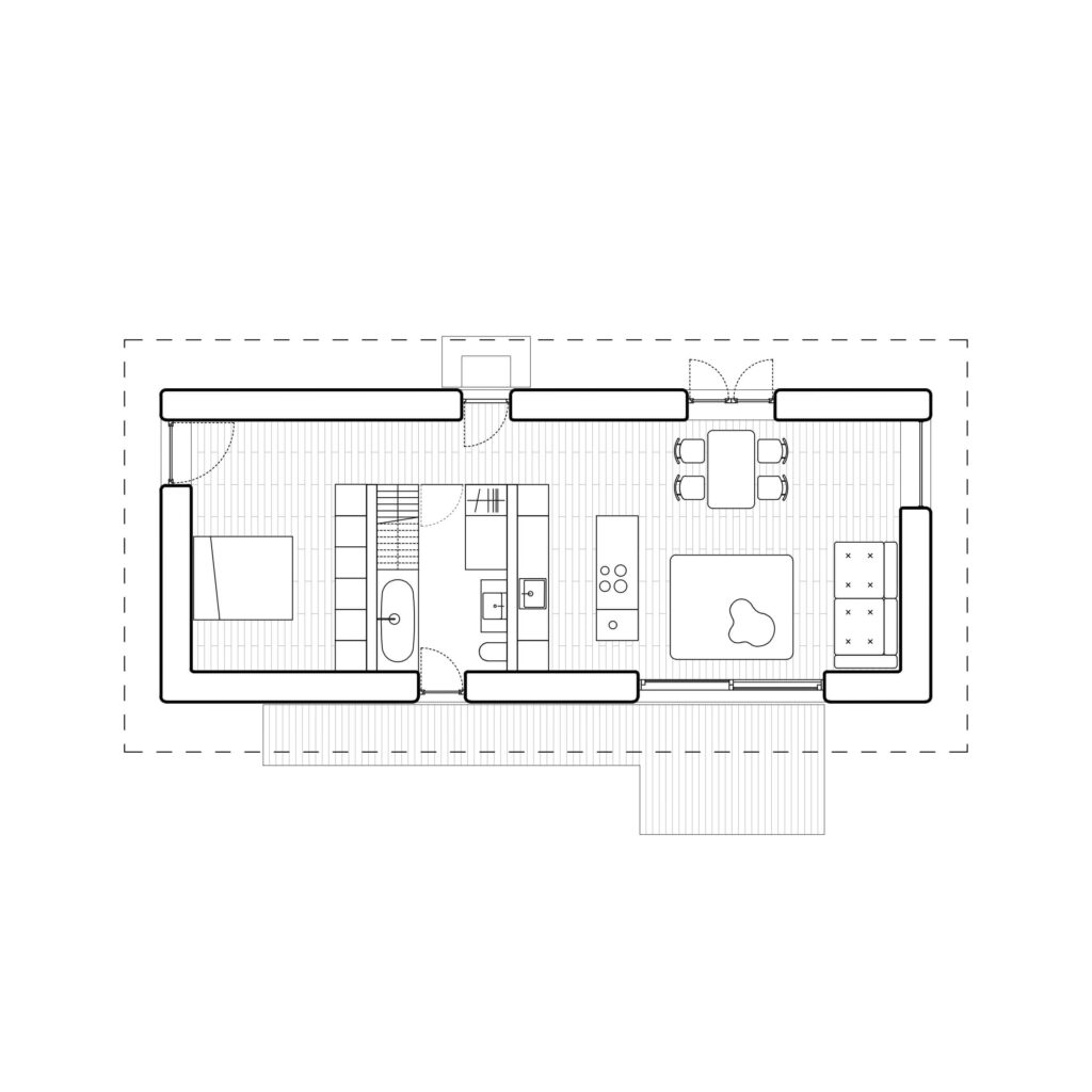
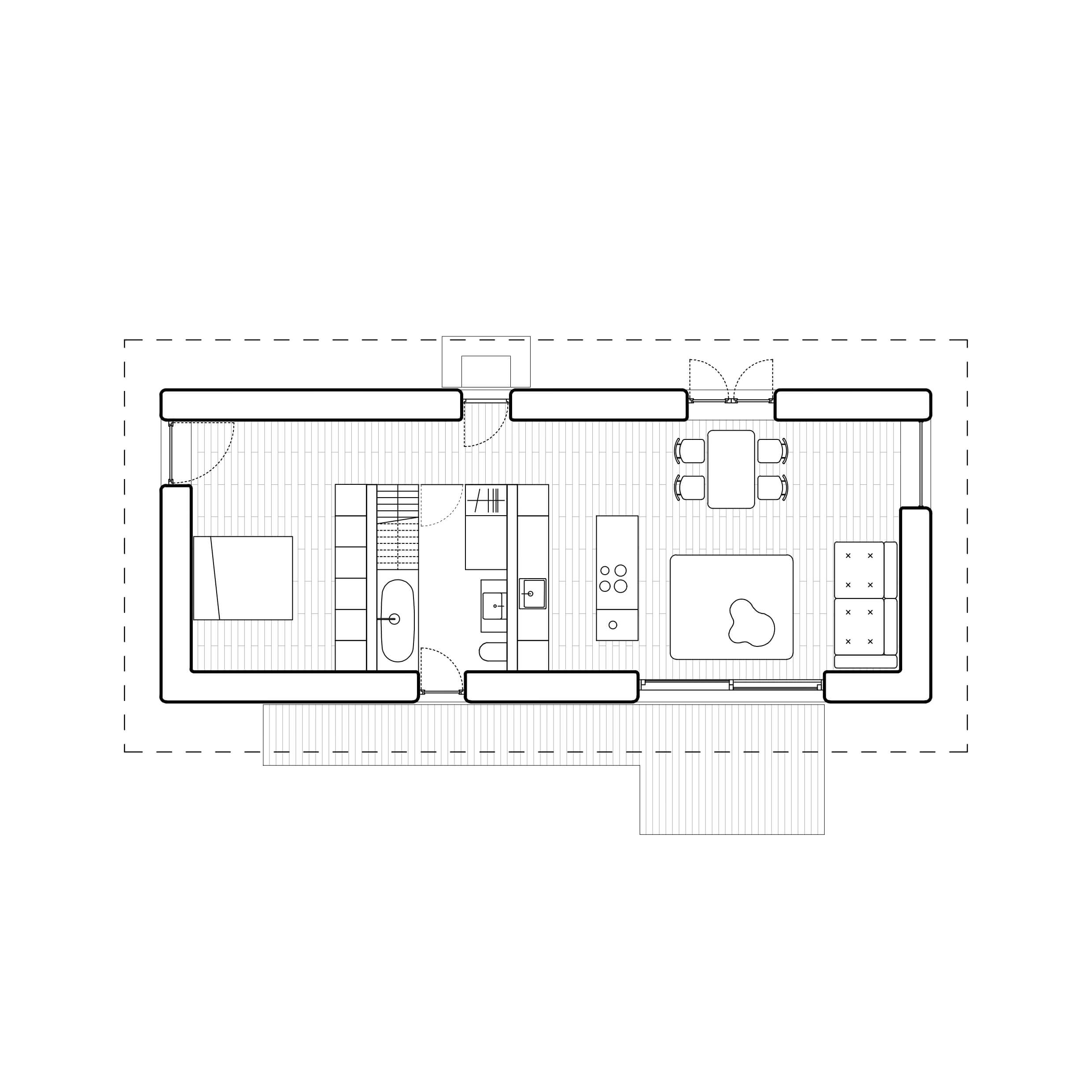
Prostorska zbranost in jasna organizacija
Hiša je zasnovana kot odprt tloris, namenjen bivanju dveh oseb, pri čemer njena majhna površina ne pomeni omejitve, temveč priložnost za premišljeno organizacijo prostora. V središču hiše stoji servisni boks, ki predstavlja njeno prostorsko in funkcionalno jedro. Z različnih strani prevzema različne vloge – v kuhinji se bere kot njen sestavni del, ob vhodu deluje kot garderobna omara, proti zadnjemu delu hiše pa ustvarja bolj intimen ambient spalnice.
V notranjosti servisnega volumna so združeni kopalnica, shranjevalni in tehnični prostori ter stopnice, ki vodijo na galerijo. Ta ni zgolj dodatni spalni prostor za goste, temveč tudi delovna niša, odprta proti osrednjemu bivalnemu prostoru. Takšna organizacija omogoča jasne prostorske odnose brez zapiranja in razdrobljenosti, hkrati pa ohranja občutek zavetja in domačnosti.
Materiali kot temelj arhitekture
Ena ključnih izhodišč projekta je bila uporaba naravnih materialov, ki niso zgolj estetska izbira, temveč določajo celoten način gradnje. Lesena skeletna konstrukcija je zapolnjena s slamnatimi balami, kar je v sodobni arhitekturni praksi še vedno redkost. Ta odločitev je zahtevala poglobljeno raziskovanje in razvoj detajlov, da bi tradicionalna tehnika ustrezala sodobnim zahtevam trajnosti, zaščite in bivalnega udobja.
Notranje stene so obdelane z ilovnatimi ometi, zunanjost z apnenimi, tla prekrivajo masivne hrastove deske, kopalnica pa je izvedena v tadelaktu. Materiali so uporabljeni premišljeno in zadržano, njihova naravna tekstura pa prostoru daje izrazito taktilno kakovost. Zaobljeni vogali, mehki prehodi in enotna lesena obloga servisnega volumna ustvarjajo umirjen ambient, ki deluje skoraj zaščitniško.
Odprtost, ki ne razkriva vsega
Kljub majhni kvadraturi je hiša močno povezana z zunanjim prostorom. Zasteklitve niso namenjene razkazovanju razgledov, temveč vzpostavljanju stalnega dialoga z okolico. Pogledi se odpirajo proti vasi in travnikom, terasa na nasprotni strani pa ponuja bolj intimen zunanji prostor, ki deluje kot naravno nadaljevanje notranjosti. Pri tem hiša ohranja ravnovesje med odprtostjo in zavetjem. Prostori so svetli, a nikoli izpostavljeni; odprti, a še vedno zbrani. Prav ta občutek mere in zadržanosti je ena največjih kvalitet projekta.
Arhitektura sodelovanja
Hiša Kozjek je rezultat tesnega sodelovanja med arhitekti in naročnikom, čigar želja po gradnji s slamnatimi balami je postavila jasen okvir projekta. Ta odločitev je odprla prostor za raziskovanje in dialog, v katerem arhitektura ni zgolj odgovor na naročilo, temveč skupni proces.
Projekt dokazuje, da trajnost ni le vprašanje energetske učinkovitosti, temveč tudi materialne iskrenosti, odnosa do prostora in načina bivanja. Hiša je majhna, a prostorsko bogata. Skromna v pojavnosti, a natančna v detajlih. Predvsem pa je primer arhitekture, ki spoštuje krajino, tradicijo in sodobnega uporabnika – brez potrebe po velikih gestah.
- Avtor projekta: STUDIO MIKA, d. o. o.
- Leto načrtovanja: 2017
- Leto izvedbe: 2019
- Površina: 82,90 m2
- Pritličje: 65,00 m2
- Galerija: 17,90 m2
Fotografije: Ana Skobe




























































